Preferiti

Sponsorizza

Stampa

Ufficio in vendita con terrazzo a Biella in via tripoli 31

  • 598.344€
  • 29 locali
  • 4550 mq
  • Vendesi

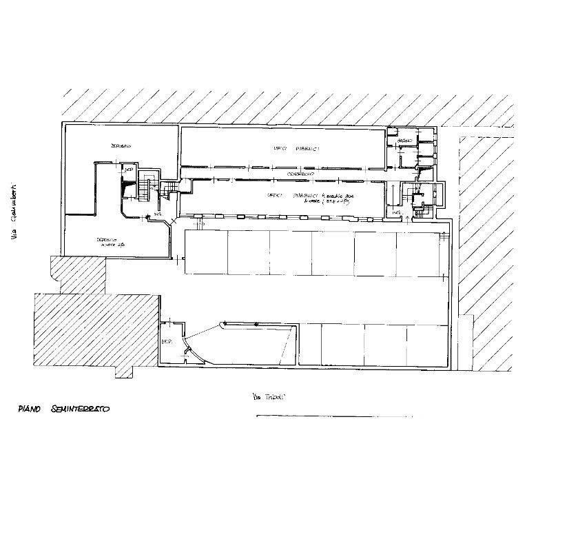
FAB. ELEVATO IN PARTE A DUE PIANI FUORI TERRA OLTRE A PIANO SEMINTER.
E IN PARTE AD UN SOLO PIANO COMPOSTO DA DUE BLOCCHI, UNO SEDE DI UFFICI PUBB. L'ALTRO PALESTRA E UFFICI.
AL PIANO SEMINTER.
DEPOSITI, ARCHIVI, UFFICI, SERVIZI IGIENICI SCALE ASCENSORE; AL PIANO RIALZATO UFFICI, DEPOSITI, SERVIZI IGIENICI, SCALE ASCENSORE, HALL DI INGRESSO, SERVIZI IGIENICI SPOGLIATOIO, PALESTRA LOCALI PER L'ATTIVITA' FISICA; AL PIANO PRIMO UFFICI, SERVIZI IGIENICI, TERRAZZO ESTERNO, SCALA , ASCENSORE, LOCALI TECNICI.
- Il Prezzo visualizzato è la Base d'Asta in quanto limmobile è oggetto di esecuzione immobiliare venduto tramite Asta Giudiziaria.
- L'immobile aggiudicato, viene venduto libero e sgombro da persone cose ed ipoteche nello stato di fatto e di diritto in cui si trova.
- Non rappresentiamo il Tribunale, ma lavoriamo nell'esclusivo interesse del potenziale acquirente per garantire un acquisto sicuro.
- I consulenti di ASTE ITALIA ti assisteranno in tutte le attività dell'iter giudiziario dalla visita dell'immobile fino alla consegna chiavi.
- Contatta il nostro Servizio Clienti , i nostri operatori sono a disposizione per chiarire i molteplici dubbi per partecipare alle ASTE. Contatta l'inserzionista

DOMY ONLINE S.R.L.DOMY ONLINE S.R.L.
Via San Lorenzo 5 Int. 41
16123, Genova (Genova)
Visualizza Telefono

INFORMAZIONI SULL'IMMOBILE

  • Riferimento: BI80/23L2-2001-26-11
  • Tipologia: Ufficio in Vendita
  • Locali: 29 Locali
  • Piano: Interrato
  • Stato: Buono
  • Bagni: 8
  • Prezzo: 598.344 €
  • Prezzo al mq: 132 €
  • Terrazzi: 1 - 84 Mq
  • Modificato il: 21/01/2026
  • Scheda: SC9481324

Stabile

  • Piano: Interrato
F

Mappa e indirizzo

Ufficio sito in via tripoli 31
13900 Biella (Biella)
mappa mostra l'annuncio su mappa

Galleria Fotografica

Contatta l'inserzionista

DOMY ONLINE S.R.L.

DOMY ONLINE S.R.L. di Genova propone in vendita questo immobile, contattali subito!

Annunci immobiliari a Biella (BI)

Copyright Š 2026 PCase.it. All rights reserved. Sede operativa MILANO. P.IVA 08508420968 - Condizioni d'uso e privacy