Preferiti

Sponsorizza

Stampa

Ufficio in vendita con terrazzo a Grosseto

  • 180.000€
  • 95 mq
  • Vendesi

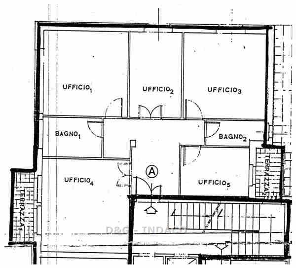
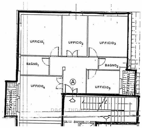
grosseto - vendesi ufficio zona via roma in ottima posizione vicino agli uffici finanziari ufficio ubicato al secondo piano e composto da 5 stanze per un totale di circa 100 mq con due servizi igienici.
palazzzo dotato di ascensore in ottimo stato di conservazione.
prezzo trattabile Contatta l'inserzionista

D E G 1991D E G 1991
via della Pace 87
58100, Grosseto (Grosseto)
Visualizza Telefono

INFORMAZIONI SULL'IMMOBILE

  • Riferimento: 1851.D172
  • Tipologia: Ufficio in Vendita
  • Piano: Secondo con ascensore
  • Bagni: 2
  • Prezzo: 180.000 €
  • Prezzo al mq: 1.895 €
  • Spese: 900,00 € (annuali)
  • Terrazzi: 1
  • Riscaldamento: Autonomo
  • Modificato il: 10/07/2024
  • Scheda: SC9473695

Stabile

  • Piano: 2 su 5 totali
  • Ascensore: Si
I.P.E.
95Kwh/m3
G

Galleria Fotografica

Contatta l'inserzionista

D E G 1991

D E G 1991 di Grosseto propone in vendita questo immobile, contattali subito!

Annunci simili

Annunci immobiliari a Grosseto (GR)

Copyright Š 2026 PCase.it. All rights reserved. Sede operativa MILANO. P.IVA 08508420968 - Condizioni d'uso e privacy