Preferiti

Sponsorizza

Stampa

Ufficio in vendita con box doppio in larghezza a Ravenna

  • 1.350.000€
  • 27 locali
  • 987 mq
  • Vendesi

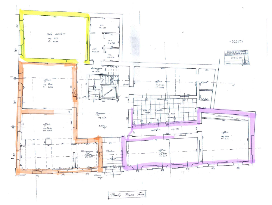
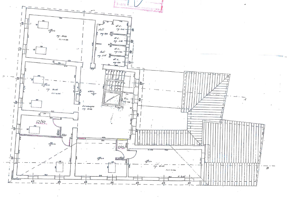
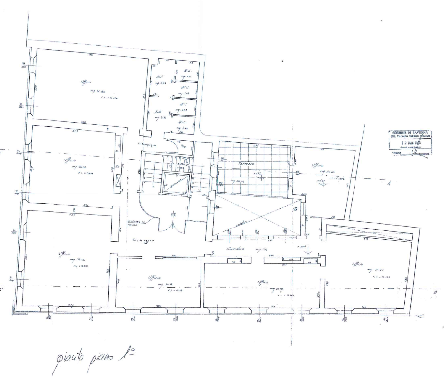
RAVENNA- RIF. AN1350 Nel cuore del centro storico, in una posizione di assoluto pregio, proponiamo in vendita unintera palazzina cieloterra di ampia metratura, ideale per chi alla ricerca di un investimento solido o di un immobile con interessanti prospettive di valorizzazione.
La palazzina si sviluppa su tre livelli: al piano terra si trovano le cantine, mentre il primo e il secondo piano sono attualmente locati ad uso ufficio, garantendo da subito una rendita.
Gli spazi sono ben distribuiti e si prestano a diverse soluzioni, anche in ottica futura.
A completare la propriet ci sono tre posti auto, un vero valore aggiunto considerata la posizione centrale, e una superficie commerciale complessiva di circa 987 mq. Si tratta di una soluzione rara, inserita in un contesto storico di grande fascino, perfetta per investitori o per chi desidera un immobile di rappresentanza nel centro citt. Per ulteriori informazioni o per approfondire questa opportunit, restiamo a disposizione.
Per ulteriori informazioni o per prenotare una visita contattare 0544 471117, riferimento AN1350. Contatta l'inserzionista

Romagna R.E. SrlRomagna R.E. Srl
Piazza del Duomo 3
, Ravenna (Ravenna)
Visualizza Telefono

INFORMAZIONI SULL'IMMOBILE

  • Riferimento: Cod. rif AN1350VCU
  • Tipologia: Ufficio in Vendita
  • Locali: 27 Locali
  • Piano: Terra
  • Bagni: 7
  • Prezzo: 1.350.000 €
  • Prezzo al mq: 1.368 €
  • Riscaldamento: Centralizzato
  • Spazio Auto: Box doppio in larghezza
  • Modificato il: 12/02/2026
  • Scheda: SC9600298

Stabile

  • Anno: 1900
  • Piano: Terra su 3 totali
  • Ascensore: Si
  • Portineria: No
  • Classe Energetica: n.d.

Mappa e indirizzo

48100 Ravenna (Ravenna)
Centro
mappa mostra l'annuncio su mappa

Galleria Fotografica

Contatta l'inserzionista

Romagna R.E. Srl

Romagna R.E. Srl di Ravenna propone in vendita questo immobile, contattali subito!

Annunci immobiliari a Ravenna (RA)

Copyright Š 2026 PCase.it. All rights reserved. Sede operativa MILANO. P.IVA 08508420968 - Condizioni d'uso e privacy