Preferiti

Sponsorizza

Stampa

Ufficio in affitto classe A4 a Venezia

  • 6.000€
  • 4 locali
  • 550 mq
  • Affittasi

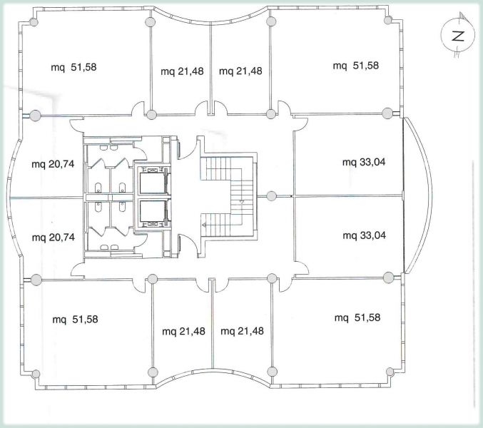
NOSTRO RIF. UF-199 Mestre Zona Auchan Proponiamo in locazione spazi direzionali di varie metrature allinterno di un contesto moderno e istituzionale, situato nelle vicinanze del parco commerciale Alle Porte di Mestre (zona AEV Terraglio). Posizione di comodità alle uscite della Tangenziale Castellana e Terraglio, e servita da bus e treno, ristoranti e centro commerciale.
Gli uffici sono dotati di ascensore, posti auto riservati e ampi parcheggi pubblici nelle immediate vicinanze.
Spese condominiali: ? 1,50/mq (utenze incluse). Disponibili dal 01/06/2026 - 275 mq con tre posti auto riservati o 550 mq con sei posti auto riservati Prezzo di locazione: ? 11/mq Contattaci per maggiori informazioni o per organizzare una visita. Contatta l'inserzionista

Gambaro Intermediazioni CommercialiGambaro Intermediazioni Commerciali
Via Gaspare Gozzi)
30172, Venezia (Venezia)
Visualizza Telefono

INFORMAZIONI SULL'IMMOBILE

  • Riferimento: UF-199_550mq
  • Tipologia: Ufficio in Affitto
  • Locali: 4 Locali (3 camere)
  • Prezzo: 6.000 €
  • Prezzo al mq: 11 €
  • Modificato il: 17/12/2025
  • Scheda: SC9545372

Stabile

  • Portineria: No
A4

Galleria Fotografica

Contatta l'inserzionista

Gambaro Intermediazioni Commerciali

Gambaro Intermediazioni Commerciali di Venezia propone in affitto questo immobile, contattali subito!

Annunci simili

Annunci immobiliari a Venezia (VE)

Copyright Š 2026 PCase.it. All rights reserved. Sede operativa MILANO. P.IVA 08508420968 - Condizioni d'uso e privacy