Preferiti

Sponsorizza

Stampa

Ufficio in affitto a Firenze in viale spartaco lavagni

  • 600€
  • 22 mq
  • Affittasi

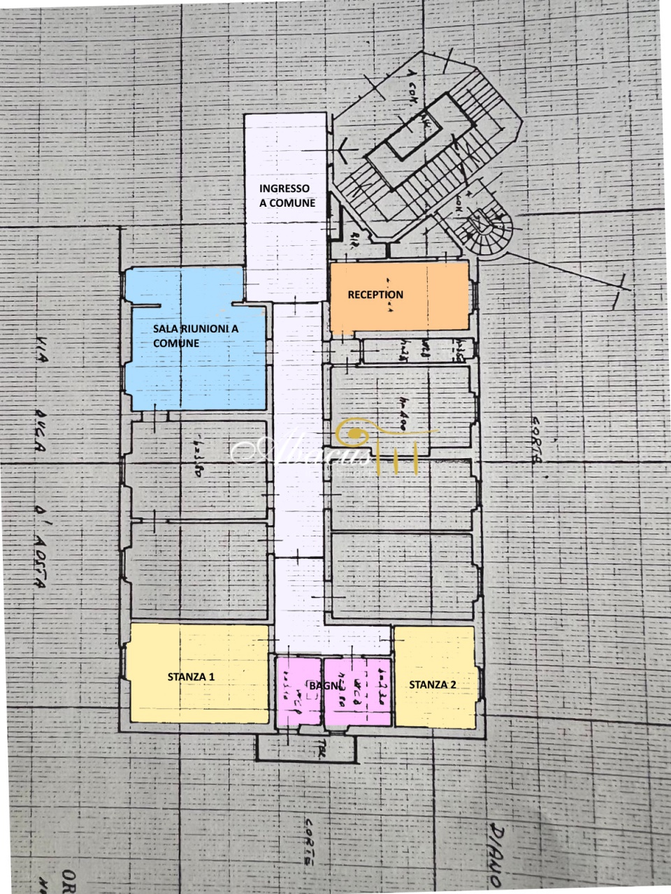
Viale Spartaco Lavagnini - In prestigioso palazzo si propone in locazione STANZE ad uso ufficio IN CONDIVISIONE.
All' intero di elegante ufficio di rappresentanza posto al 3 piano con ascensore e composto da ampio ingresso/sala attesa ad uso comune, una ampia sala riunioni ad uso comune, 2 servizi ad uso comune, attualmente sono disponibili: n.1 ampie stanza di 22 mq, n.1 stanza di 12 mq Le stanze hanno riscaldamento e aria condizionata.
Vengono consegnate imbiancate e ripristinato il pavimento in parquet.
Il prezzo è omnicomprensivo di: - servizio segreteria 9-13/14-18 e fornitura consumabili stanze comuni - spese condominiali - tassa rifiuti - utenza di acqua, luce e gas per il riscaldamento - pulizia Per la singola stanza grande viene richiesto Euro 1.000+IVA al mese ed Euro 600+IVA per quella piu piccola TUTTO INCLUSO con contratto di servizio.
Abacus Immobiliare -- 055.4684635 -- 347.6590279 Piazza della Liberta' 2/r -- Firenze *******@******* La nostra agenzia offre ai propri clienti una vasta gamma di servizi di consulenza e assistenza atti a garantire una compravendita e locazione immobiliare in totale tranquillità. Abacus immobiliare mette a disposizione la propria serietà , professionalità ed esperienza accompagnandovi passo passo dalla proposta fino al rogito notarile così come nella stipula del contratto di locazione, con l' impegno e la discrezione che ci contraddistingue.
Si offrono consulenze e stime immobiliari gratuite e senza impegno.
(*) Le indicazioni e le foto riportate devono essere considerate indicative e non hanno alcun contenuto contrattuale.
Le planimetrie e le metrature commerciali sono puramente indicative.
L' indirizzo può non rispecchiare l'esatta ubicazione dell'immobile ed è utile al solo fine di fornire un riferimento generico per la sua localizzazione per garantire la privacy dei proprietari. Contatta l'inserzionista

ABACUS IMMOBILIAREABACUS IMMOBILIARE
PIAZZA DELLA LIBERTA 2/R
50129, Firenze (Firenze)
Visualizza Telefono

INFORMAZIONI SULL'IMMOBILE

  • Riferimento: ABA/344_2
  • Tipologia: Ufficio in Affitto
  • Piano: Terzo
  • Stato: Buono
  • Bagni: 2
  • Prezzo: 600 €
  • Prezzo al mq: 27 €
  • Riscaldamento: Autonomo
  • Spazio Auto: No
  • Modificato il: 20/04/2026
  • Scheda: SC9640888

Stabile

  • Piano: 3
I.P.E.
175Kwh/m3
G

Mappa e indirizzo

Ufficio sito in viale spartaco lavagni
50142 Firenze (Firenze)
Centro
mappa mostra l'annuncio su mappa

Galleria Fotografica

Contatta l'inserzionista

ABACUS IMMOBILIARE

ABACUS IMMOBILIARE di Firenze propone in affitto questo immobile, contattali subito!

Annunci immobiliari a Firenze (FI)

Copyright Š 2026 PCase.it. All rights reserved. Sede operativa MILANO. P.IVA 08508420968 - Condizioni d'uso e privacy