Preferiti

Sponsorizza

Stampa

Ufficio in affitto a Padova

  • 650€
  • 2 locali
  • 32 mq
  • Affittasi

RIF. AL0339 Gabetti propone in locazione a Padova, al confine con Albignasego, ufficio al piano primo del complesso direzionale di Villa Ferri.
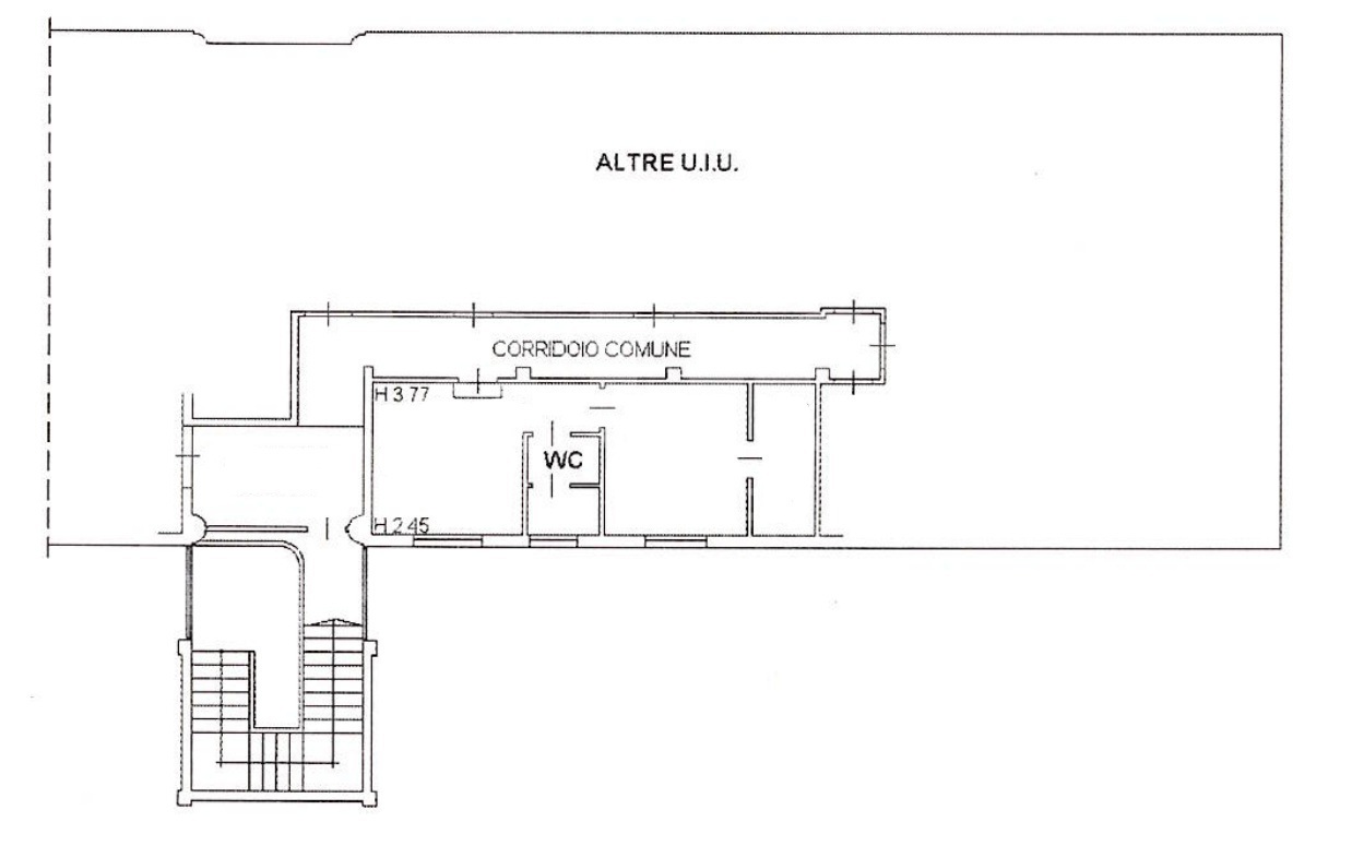
L'immobile si sviluppa su un unico livello e si compone di due locali principali, un servizio con antibagno ed un locale ripostiglio/spogliatoio.
Si presta, quindi, per diverse possibilit lavorative ed ubicato in una zona al crocevia tra Padova e il comune di Albignasego, con ampia possibilit di parcheggio non a pagamento per eventuali clienti.
Si trova, inoltre, in uno stabile conosciuto in zona che ospita gi diverse attivit mediche e ambulatoriali, una palestra, ecc. Oltre al canone sono previsti ulteriori 100 euro mensili comprensivi di tutte le utenze, gi attive a nome della propriet, ad eccezione della TARI. Si valuta la locazione soltanto a persone referenziate. Contatta l'inserzionista

INFORMAZIONI SULL'IMMOBILE

  • Riferimento: Cod. rif 3299906ACU
  • Tipologia: Ufficio in Affitto
  • Locali: 2 Locali ( 1 camera e un bagno)
  • Piano: Primo
  • Prezzo: 650 €
  • Prezzo al mq: 20 €
  • Spazio Auto: No
  • Modificato il: 24/03/2026
  • Scheda: SC9619890

Stabile

  • Piano: 1
I.P.E.
174,24Kwh/m2
E

Mappa e indirizzo

35135 Padova (Padova)
Città Giardino, Crocifisso, Guizza, Madonna Pellegrina
mappa mostra l'annuncio su mappa

Galleria Fotografica

Contatta l'inserzionista

Pace s.n.c. di Visentini Antonella & c.

Pace s.n.c. di Visentini Antonella & c. di Albignasego propone in affitto questo immobile, contattali subito!

Annunci immobiliari a Padova (PD)

Copyright © 2026 PCase.it. All rights reserved. Sede operativa MILANO. P.IVA 08508420968 - Condizioni d'uso e privacy