Preferiti

Sponsorizza

Stampa

Appartamento in vendita a Chieri in via biscaretti 0 - roaschia - corso torino

  • 275.000€
  • zona roaschia - corso torino
  • 3 locali
  • 105 mq
  • Vendesi

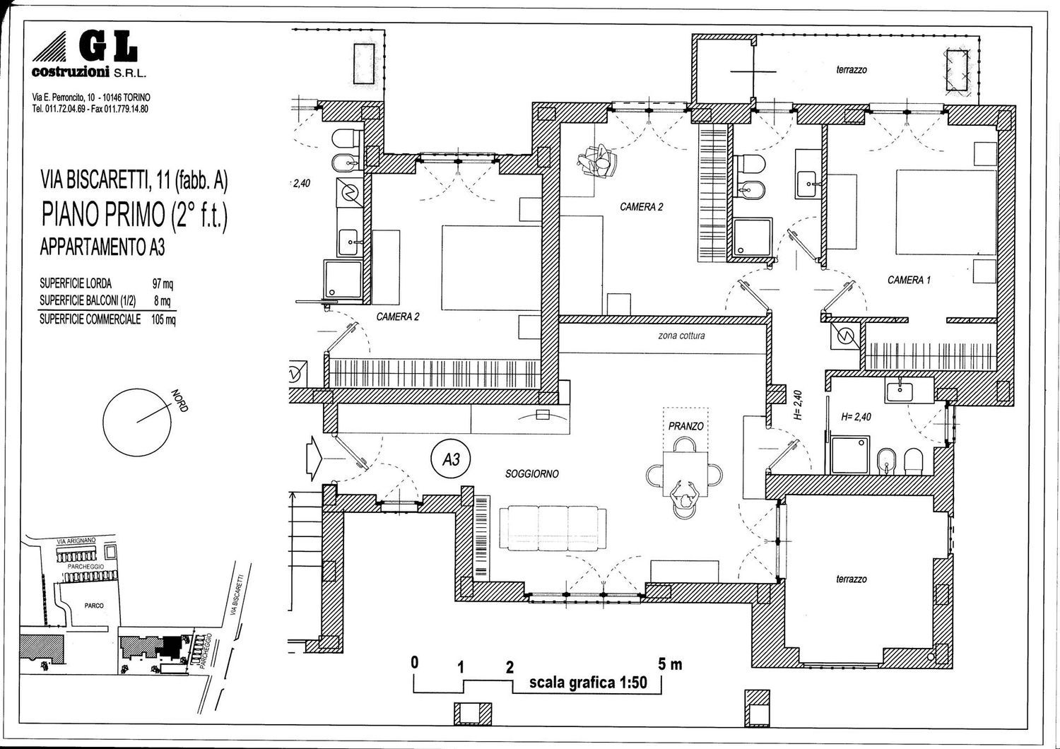
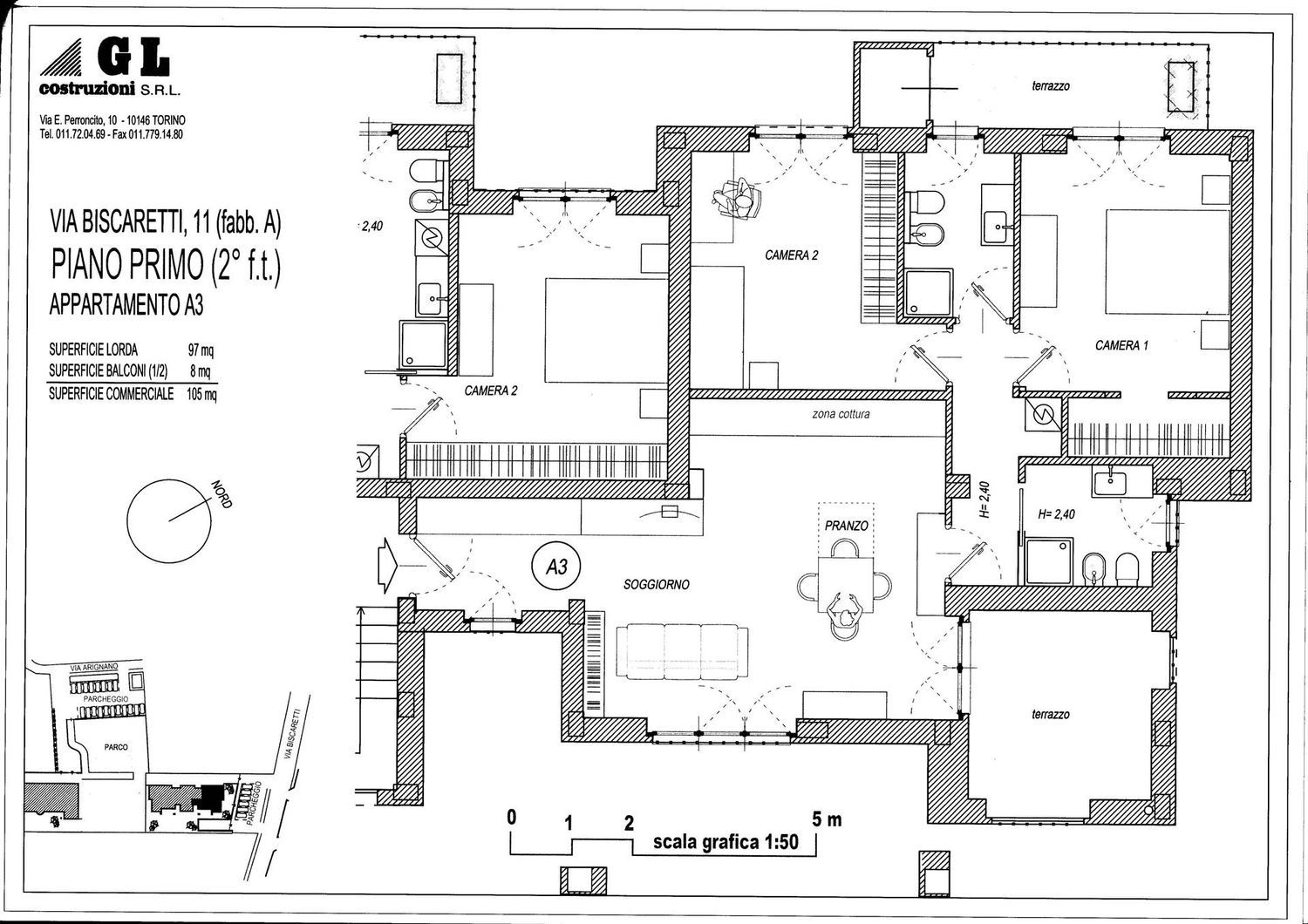
Prezzo Eu. 275.000, 00 oltre iva Consegna prevista Novembre 2026Distribuzione spazi: Ingresso soggiorno zona pranzo, due camere e doppi servizi, due terrazzi oltre ***.*******.** Costruzione in Classe A - Palazzina "A"Zona Residenziale-Vendesi appartamenti di nuova costruzione situati in una tranquilla zona residenziale.
Questo stabile, progettato per il massimo comfort e efficienza energetica, è in classe A e offre diverse caratteristiche innovative:- Pannelli Fotovoltaici: L'energia prodotta sarà suddivisa tra le unità con una potenza di 2 kW, senza accumulo.- Riscaldamento a Pavimento: Dotato di pompa di calore individuale, per un riscaldamento ottimale e sostenibile.- Rifiniture di Alta Qualità: Gli appartamenti presentano ottime rifiniture, curate nei minimi ***.*******.** planimetrie hanno valore puramente illustrativo e possono subire variazioni in fase di realizzazione.
Tutti i contenuti del presente annuncio (testi, fotografie e planimetrie) sono indicativi e non costituiscono nè presupposto nè elemento contrattuale. Contatta l'inserzionista

INFORMAZIONI SULL'IMMOBILE

  • Riferimento: 319000-3015
  • Tipologia: Appartamento in Vendita
  • Locali: 3 Locali (2 camere con doppi servizi)
  • Prezzo: 275.000 €
  • Prezzo al mq: 2.619 €
  • Modificato il: 30/12/2025
  • Scheda: SC9515881

Stabile

  • Anno: 2024
  • Classe Energetica: n.d.

Mappa e indirizzo

Appartamento sito in via biscaretti 0
10023 Chieri (Torino), zona roaschia - corso torino
mappa mostra l'annuncio su mappa

Galleria Fotografica

Contatta l'inserzionista

Tecnorete chieri

Tecnorete chieri di propone in vendita questo immobile, contattali subito!

Annunci simili

Annunci immobiliari a Chieri (TO)

Copyright Š 2026 PCase.it. All rights reserved. Sede operativa MILANO. P.IVA 08508420968 - Condizioni d'uso e privacy