Preferiti

Sponsorizza

Stampa

Appartamento in vendita con giardino a Padova

  • 110.000€
  • 3 locali
  • 78 mq
  • Vendesi

Rif. AL0340 Gabetti di Albignasego propone in vendita porzione di bifamiliare al piano terra, su lotto di circa 800 mq, ubicata in zona molto tranquilla ma allo stesso tempo strategica, in quanto a met strada tra Padova e Albignasego.
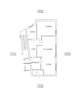
I due appartamenti si sviluppano uno al piano terra ed uno al primo livello, cui si accede da una scala esterna.
Entrambi si compongono di: veranda, un ingresso spazioso, soggiorno con angolo cottura dalle dimensioni generose, un corridoio che conduce alla zona notte, composto da una camera matrimoniale e un bagno finestrato.
L'immobile degli anni '60 e necessita pertanto di una ristrutturazione totale.
Si presta, inoltre, a diverse opportunit e risulta ideale sia per ospitare un doppio nucleo familiare, che per realizzare un'unica soluzione abitativa unendo le due porzioni.
Vi inoltre la possibilit di aumentare la cubatura esistente di un ulteriore 10%. Ubicato in posizione ottimale, immersa nel verde, ma allo stesso tempo vicino al centro di Salboro e a pochi minuti dal centro di Albignasego. Contatta l'inserzionista

INFORMAZIONI SULL'IMMOBILE

  • Riferimento: AL0340VRG
  • Tipologia: Appartamento in Vendita
  • Locali: 3 Locali (2 camere, cucina angolo cottura e un bagno)
  • Piano: Terra
  • Stato: da Ristrutturare
  • Prezzo: 110.000 €
  • Prezzo al mq: 1.410 €
  • Riscaldamento: Autonomo
  • Giardino: Privato
  • Spazio Auto: Box doppio in larghezza
  • Arredato: Si
  • Modificato il: 24/03/2026
  • Scheda: SC9619888

Stabile

  • Anno: 1960
  • Piano: Terra su 1 totali
  • Portineria: No
I.P.E.
212,65Kwh/m2
G

Mappa e indirizzo

35135 Padova (Padova)
Città Giardino, Crocifisso, Guizza, Madonna Pellegrina
mappa mostra l'annuncio su mappa

Galleria Fotografica

Contatta l'inserzionista

Pace s.n.c. di Visentini Antonella & c.

Pace s.n.c. di Visentini Antonella & c. di Albignasego propone in vendita questo immobile, contattali subito!

Annunci simili

Annunci immobiliari a Padova (PD)

Copyright © 2026 PCase.it. All rights reserved. Sede operativa MILANO. P.IVA 08508420968 - Condizioni d'uso e privacy