Preferiti

Sponsorizza

Stampa

Appartamento in vendita a Monteriggioni in fornacelle

  • 220.000€
  • 3 locali
  • 65 mq
  • Vendesi

Nel grazioso complesso residenziale di Fornacelle, Via del Pino, al piano primo ed ultimo con ingresso per sole due unità, vendesi appartamento seminuovo di 65 mq divisi tra soggiorno con angolo cottura, disimpegno, camera matrimoniale, camera singola e bagno finestrato.
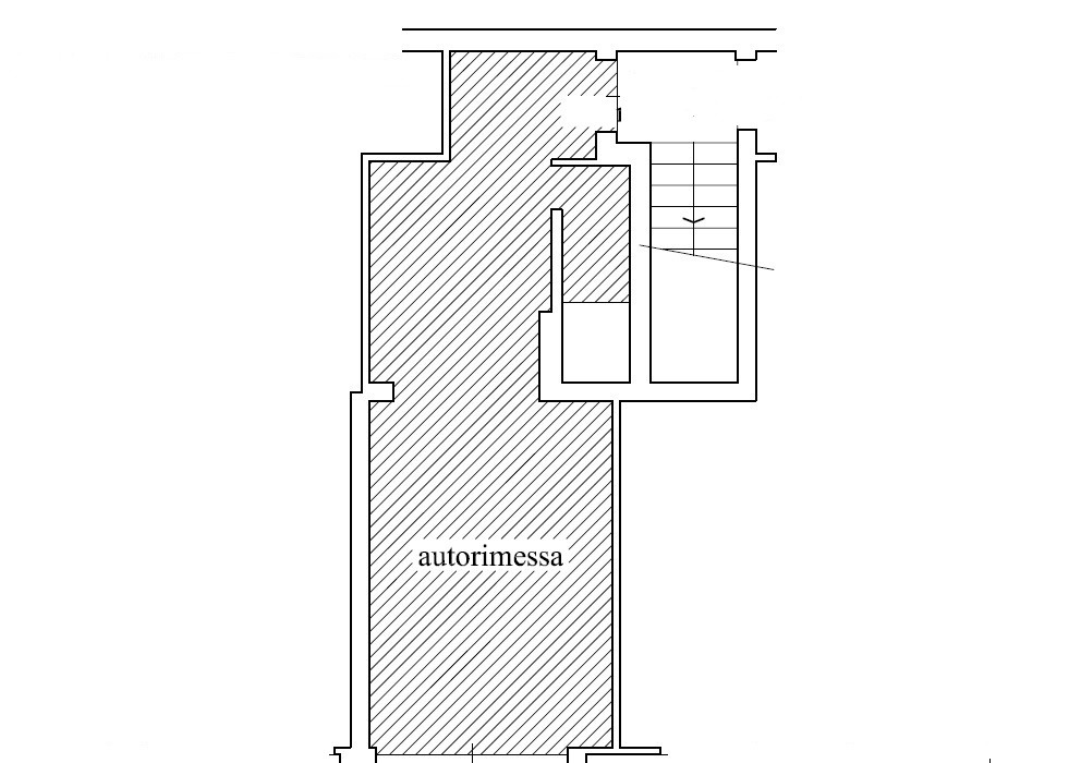
Completa la proprietà un ampio garage di 30 mq posto al piano seminterrato e collegato tramite scala interna.
Tutto in ottime condizioni, impianti a norma e certificati con utenze autonome.
Spese condominiali circa 60 euro al mese tra amministratore, luci esterne, assicurazione e consumo dell acqua.
Per informazioni 338 5495159 Contatta l'inserzionista

AD Immobiliare di Brogi GianniAD Immobiliare di Brogi Gianni
VIA CASSIA NORD 22
53035, Monteriggioni (Siena)
Visualizza Telefono

INFORMAZIONI SULL'IMMOBILE

  • Riferimento: AN815
  • Tipologia: Appartamento in Vendita
  • Locali: 3 Locali (2 camere e un bagno)
  • Piano: Ultimo Piano
  • Prezzo: 220.000 €
  • Prezzo al mq: 3.385 €
  • Spese: 720,00 € (annuali)
  • Riscaldamento: Centralizzato
  • Modificato il: 17/01/2026
  • Scheda: SC9584173

Stabile

  • Piano: 1 su 1 totali
C

Galleria Fotografica

Contatta l'inserzionista

AD Immobiliare di Brogi Gianni

AD Immobiliare di Brogi Gianni di Monteriggioni propone in vendita questo immobile, contattali subito!

Annunci simili

Annunci immobiliari a Monteriggioni (SI)

Copyright Š 2026 PCase.it. All rights reserved. Sede operativa MILANO. P.IVA 08508420968 - Condizioni d'uso e privacy