Preferiti

Sponsorizza

Stampa

Appartamento in vendita a Borgo San Lorenzo

  • 180.000€
  • 3 locali
  • 96 mq
  • Vendesi

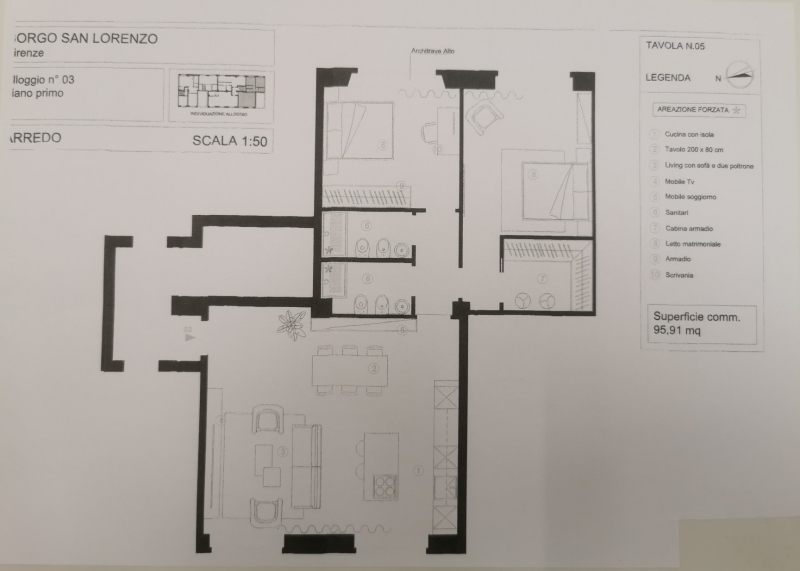
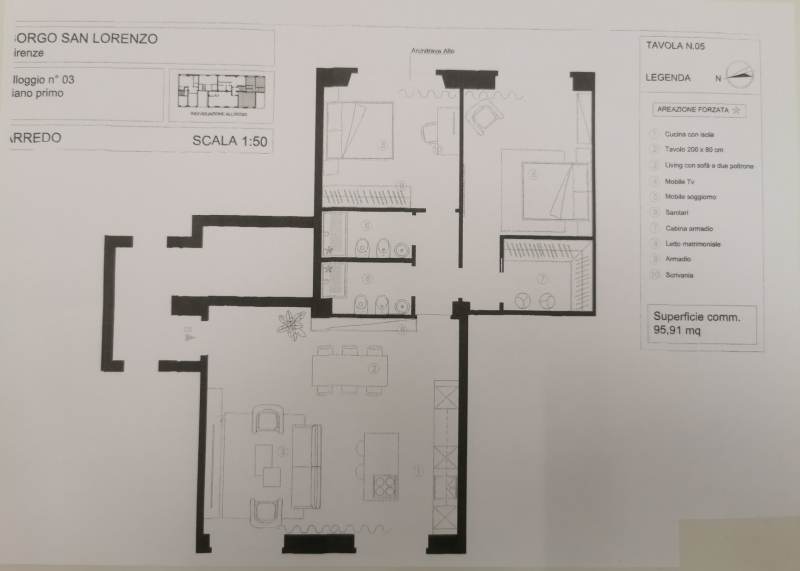
Scopri questo splendido appartamento di mq 96 situato al primo piano, ideale per chi cerca comfort e luminosità. La grande zona giorno con angolo cottura è perfetta per trascorrere momenti di convivialità con amici e familiari.
Le due camere da letto matrimoniali offrono ampio spazio per il riposo, mentre i doppi servizi garantiscono praticità e comodità per tutti.
In aggiunta, l'appartamento è dotato di una stanza guardaroba, perfetta per organizzare al meglio i tuoi vestiti e accessori.
Non dimenticare la cantina, un utile spazio extra per riporre tutto ciò di cui non hai bisogno quotidianamente.
Inoltre, il posto auto esclusivo rende la vita ancora più comoda, soprattutto in una zona centrale.
Questo immobile è riscaldato tramite pompa di calore a gas naturale, garantendo un clima ideale in ogni stagione.
Con un orientamento est-ovest, potrai godere di luce naturale durante tutto il giorno.
Non perdere l'occasione di visitare questo appartamento unico e fare di esso la tua nuova casa! Contatta l'inserzionista

Immobiliare RoselliImmobiliare Roselli
piazza Dante)
50032, Borgo San Lorenzo (Firenze)
Visualizza Telefono

INFORMAZIONI SULL'IMMOBILE

  • Riferimento: A 174
  • Tipologia: Appartamento in Vendita
  • Locali: 3 Locali (2 camere, cucina angolo cottura)
  • Piano: Primo
  • Stato: Buono
  • Prezzo: 180.000 €
  • Prezzo al mq: 1.875 €
  • Riscaldamento: Autonomo
  • Cantina: Si
  • Modificato il: 13/04/2026
  • Scheda: SC9516824

Stabile

  • Piano: 1 su 2 totali
  • Portineria: No
  • Classe Energetica: n.d.

Galleria Fotografica

Contatta l'inserzionista

Immobiliare Roselli

Immobiliare Roselli di Borgo San Lorenzo propone in vendita questo immobile, contattali subito!

Annunci simili

Annunci immobiliari a Borgo San Lorenzo (FI)

Copyright Š 2026 PCase.it. All rights reserved. Sede operativa MILANO. P.IVA 08508420968 - Condizioni d'uso e privacy