Preferiti

Sponsorizza

Stampa

Appartamento in vendita ristrutturato a Rivoli

  • 199.000€
  • 3 locali
  • 103 mq
  • Vendesi

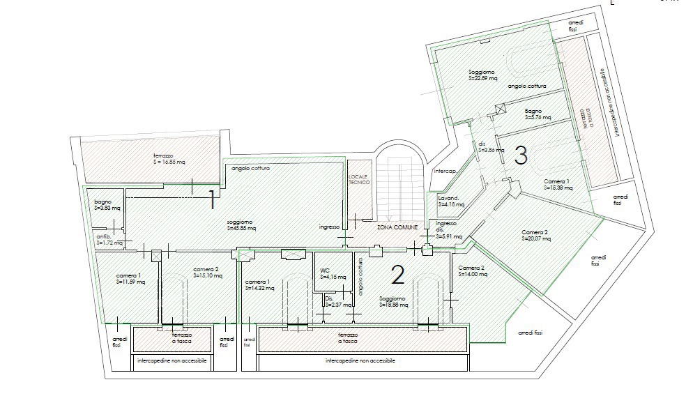
La Gabetti propone nel cuore del comune di Rivoli (TO). Un intervento che prevede la ristrutturazione della copertura esistente dello stabile di Via Piol 63 con la realizzazione di tre unit abitative, poste allultimo piano a destinazione residenziale con linstallazione di tre abbaini con tasca prospicienti su via Piol, due su via Susa e la costruzione di un terrazzo sul lato interno cortile.
Internamente sono previste nuove divisioni, la posa di nuovi pavimenti e rivestimenti, linstallazione di porte interne, nuovo impianto elettrico, di riscaldamento e produzione di acqua calda sanitaria tramite caldaia a condensazione e possibilit opzionale di raffrescamento con pompa di calore.
Tutti i materiali utilizzati rispetteranno le normative vigenti in materia di sicurezza e sostenibilit.
Le prestazioni termiche per le opere del tetto saranno conformi al ***.*******.** 192/2005. La posizione centrale dell'appartamento offre la comodit di avere a portata di mano bar, caff, ristoranti, farmacie e altro ancora.
Inoltre, la presenza di un parcheggio nelle vicinanze facilita gli abitanti e i visitatori.
Possibilit nell'interno cortile di due posti auto coperti ad Euro 25.000,00 cadauno.
Consegna prevista per giugno 2026, questo immobile una fantastica opportunit per chi cerca un appartamento con soggiorno e cucina a vista, due camere da letto e un bagno.
Non perdere l'occasione di personalizzare gli interni e vivere in un ambiente confortevole e accogliente.
Contattami per ulteriori informazioni e per organizzare una visita! La presente descrizione ha valore puramente indicativo e non costituisce elemento contrattuale ne presupposto contrattuale.
Tutte le misure eventualmente riportate devono considerarsi indicative.
Richiedi ora un appuntamento per visionare limmobile o per una valutazione gratuita e senza impegno del tuo immobile contattaci al tel 011.9566022 cell 3515047619 Contatta l'inserzionista

Celesia AlexiaCelesia Alexia
Corso Susa 50
, Rivoli (Torino)
Visualizza Telefono

INFORMAZIONI SULL'IMMOBILE

  • Riferimento: Cod. rif 3272660VRG
  • Tipologia: Appartamento in Vendita
  • Locali: 3 Locali (2 camere, cucina abitabile e un bagno)
  • Piano: Ultimo Piano con ascensore
  • Stato: Ristrutturato
  • Prezzo: 199.000 €
  • Prezzo al mq: 1.932 €
  • Riscaldamento: Autonomo
  • Spazio Auto: No
  • Modificato il: 03/04/2026
  • Scheda: SC9492551

Stabile

  • Anno: 1980
  • Piano: 3 su 3 totali
  • Ascensore: Si
  • Portineria: No
  • Classe Energetica: n.d.

Mappa e indirizzo

10098 Rivoli (Torino)
mappa mostra l'annuncio su mappa

Galleria Fotografica

Contatta l'inserzionista

Celesia Alexia

Celesia Alexia di Rivoli propone in vendita questo immobile, contattali subito!

Annunci simili

Annunci immobiliari a Rivoli (TO)

Copyright Š 2026 PCase.it. All rights reserved. Sede operativa MILANO. P.IVA 08508420968 - Condizioni d'uso e privacy