Preferiti

Sponsorizza

Stampa

Appartamento in vendita ristrutturato a Milano

  • 560.000€
  • 3 locali
  • 75 mq
  • Vendesi

Nel cuore di Milano, la nostra Agenzia propone in vendita ampio appartamento situato al terzo piano di Casa Torniamenti, uno splendido palazzo in stile Liberty realizzato nel 1899 da Alfredo Campanini, tra i principali protagonisti del Liberty milanese.
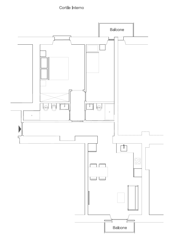
Labitazione, luminosa e caratterizzata da soffitti alti e da una doppia esposizione, si distingue per gli ampi spazi interni e per il fascino architettonico dellepoca.
Lappartamento composto da un soggiorno con cucina a vista, due camere da letto, due bagni e due balconi, oltre a un solaio di pertinenza.
Lo stabile dispone di servizio di portineria, ascensore e una bellissima corte interna.
La zona servita in modo eccellente: a pochi passi si trovano le fermate della metropolitana Caiazzo, Lima e Loreto, oltre a numerose linee di autobus e tram che collegano rapidamente con il centro e le principali universit milanesi.
Nelle immediate vicinanze troviamo Corso Buenos Aires, una delle vie commerciali pi importanti di Milano oltre a servizi di prima necessit come supermercati, scuole, palestre, farmacie e una vasta scelta di ristoranti e negozi.
Lappartamento attualmente in fase di completa ristrutturazione con finiture di pregio personalizzabili secondo le esigenze del cliente.
Le spese condominiali comprendono il riscaldamento.
Per ulteriori informazioni o per visionare la soluzione contattare il seguente numero di telefono: 02.89501508 Il presente annuncio non costituisce, in alcun modo, elemento contrattuale in relazione al fatto che potrebbe includere errori di trascrizione riguardo i dati indicati.
Invitiamo per correttezza a verificare personalmente i dati al momento della visione, nella massima trasparenza.
La rete immobiliare Gabetti opera sul territorio da anni, offrendo alla clientela servizi di intermediazione immobiliare e consulenza professionale.
Affidarsi a Gabetti significa scegliere la professionalit e l'esperienza di un gruppo presente da oltre 60 anni sul mercato immobiliare.
Un marchio storico, capace di rinnovarsi negli anni, coniugando i valori della tradizione, seriet e affidabilit con quelli della modernit, dell'innovazione e del dinamismo.
La Nostra societ affiliata al Gruppo Gabetti presente a Milano in Via Medeghino n. 32 ed opera sul mercato della zona da oltre 30 anni. Contatta l'inserzionista

Immobiliare Bugatti SrlImmobiliare Bugatti Srl
Via Medeghino 32
, Milano (Milano)
Visualizza Telefono

INFORMAZIONI SULL'IMMOBILE

  • Riferimento: L.L-TRILOVRG
  • Tipologia: Appartamento in Vendita
  • Locali: 3 Locali (2 camere, cucina abitabile con doppi servizi)
  • Piano: Terzo con ascensore
  • Stato: Ristrutturato
  • Prezzo: 560.000 €
  • Prezzo al mq: 7.467 €
  • Spese: 3.996,00 € (annuali)
  • Balconi: 1
  • Riscaldamento: Centralizzato
  • Spazio Auto: No
  • Modificato il: 09/03/2026
  • Scheda: SC9485349

Stabile

  • Piano: 3
  • Ascensore: Si
  • Giardino: Condominiale
  • Portineria: Si
  • Classe Energetica: n.d.

Mappa e indirizzo

20131 Milano (Milano)
Centrale, Repubblica
mappa mostra l'annuncio su mappa

Metropolitana
M2
Fermata Caiazzo a 260m
circa 4/6 min a piedi
Metropolitana
M1
Fermata Lima a 300m
circa 5/7 min a piedi
Metropolitana
M1 M2
Fermata Loreto a 390m
circa 6/8 min a piedi
Metropolitana
M2 M3
Fermata Centrale FS a 640m
circa 10/12 min a piedi
Metropolitana
M3
Fermata Repubblica a 980m
circa 16/18 min a piedi
Metropolitana
M1
Fermata Porta Venezia a 1000m
circa 16/18 min a piedi

Galleria Fotografica

Contatta l'inserzionista

Immobiliare Bugatti Srl

Immobiliare Bugatti Srl di Milano propone in vendita questo immobile, contattali subito!

Annunci simili

Annunci immobiliari a Milano (MI)

Copyright Š 2026 PCase.it. All rights reserved. Sede operativa MILANO. P.IVA 08508420968 - Condizioni d'uso e privacy