Preferiti

Sponsorizza

Stampa

Appartamento in vendita ristrutturato a Guidonia Montecelio

  • 119.000€
  • 3 locali
  • 65 mq
  • Vendesi

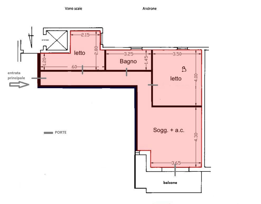
Splendido appartamento trilocale, situato a Setteville, nel comune di Guidonia Montecelio (RM). Con una superficie di 65 mq, questo immobile offre 1 camera da letto matrimoniale, una cameretta con cabina armadio, 1 bagno, un salone con angolo cottura e 1 balcone.
Le condizioni interne verranno completamente ristrutturate, garantendo un ambiente moderno e accogliente.
L'appartamento libero e gode di una singola esposizione che garantisce luminosit e tranquillit.
CONDOMINIO: centralizzato (circa 100 euro al mese comprese spese riscaldamento) La posizione strategica permette di raggiungere facilmente servizi essenziali come bar, caff, ristoranti e farmacie.
Ideale per chi cerca un'abitazione confortevole e ben curata, questo appartamento rappresenta un'opportunit unica nel contesto di Setteville.
Contattaci per organizzare una visita e scoprire tutte le potenzialit di questa meravigliosa propriet! Contatta l'inserzionista

G Immobiliare SrlsG Immobiliare Srls
Via Giuseppe Massari 2
, Guidonia Montecelio (Roma)
Visualizza Telefono

INFORMAZIONI SULL'IMMOBILE

  • Riferimento: Cod. rif 3311420VRG
  • Tipologia: Appartamento in Vendita
  • Locali: 3 Locali (2 camere, cucina angolo cottura e un bagno)
  • Piano: Primo
  • Stato: Ristrutturato
  • Prezzo: 119.000 €
  • Prezzo al mq: 1.831 €
  • Balconi: 1
  • Spazio Auto: No
  • Modificato il: 21/04/2026
  • Scheda: SC9641084

Stabile

  • Piano: 1
  • Classe Energetica: n.d.

Mappa e indirizzo

00012 Guidonia Montecelio (Roma)
mappa mostra l'annuncio su mappa

Contatta l'inserzionista

G Immobiliare Srls

G Immobiliare Srls di Guidonia Montecelio propone in vendita questo immobile, contattali subito!

Annunci simili

Annunci immobiliari a Guidonia Montecelio (RM)

Copyright Š 2026 PCase.it. All rights reserved. Sede operativa MILANO. P.IVA 08508420968 - Condizioni d'uso e privacy