Preferiti

Sponsorizza

Stampa

Appartamento in vendita a Cremona

  • 275.000€
  • 3 locali
  • 119 mq
  • Vendesi

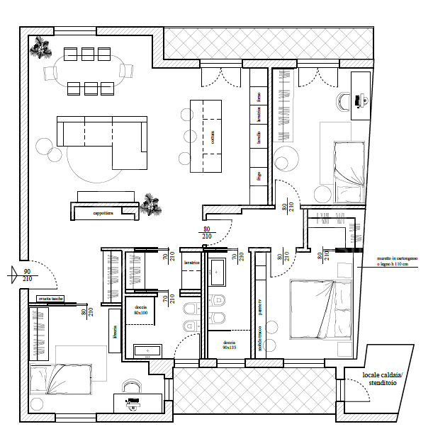
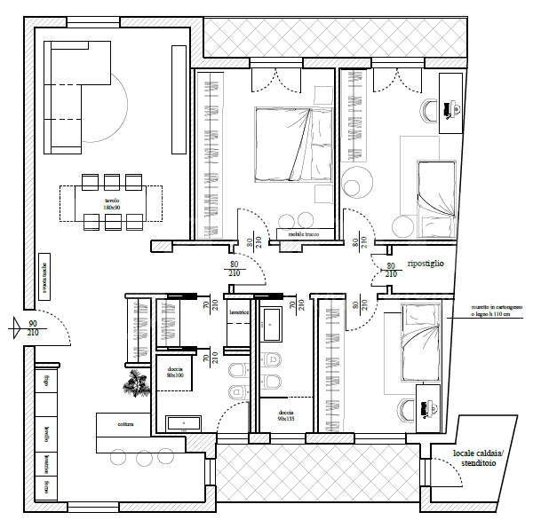
Linteressante soluzione, sita al terzo piano servito da ascensore in curato contesto del centro citt, in corso di completa ristrutturazione, con possibilit di scelta delle finiture interne da ampio capitolato.
Lintervento sullimmobile in oggetto prevede principalmente la diversa distribuzione degli spazi interni, con possibilit di soggiorno/cucina in open space, con accesso ad un balcone con bellissima vista sul Duomo, oppure progetto con i due ambienti separati, con accesso ad un terrazzino coperto dalla cucina.
L'appartamento si compone poi di un locale accessibile dal terrazzino, utilizzabile a piacere come lavanderia/cucina esterna/locale tecnico.
Le camere da letto sono tre, due delle quali matrimoniali, e i bagni sono due, entrambi finestrati.
Riguardo le finiture interne dellimmobile, in particolare, si pone attenzione sulla realizzazione di nuovi pavimenti, rivestimenti, realizzazione porzione di nuovi controsoffitti nuovo impianto elettrico ed idrico, nuovo impianto di riscaldamento con termosifoni in alluminio, quattro predisposizioni per impianto di climatizzazione estiva, nuovi serramenti esterni - interni e battiscopa.
A corredo, troviamo una cantina ed una soffitta di pertinenza. Contatta l'inserzionista

Gruppo CPiace SrlGruppo CPiace Srl
Piazza Antonio Stradivari 18
, Cremona (Cremona)
Visualizza Telefono

INFORMAZIONI SULL'IMMOBILE

  • Riferimento: Cod. rif 3300853VRG
  • Tipologia: Appartamento in Vendita
  • Locali: 3 Locali (2 camere, cucina abitabile con doppi servizi)
  • Piano: Terzo
  • Stato: Ristrutturato
  • Prezzo: 275.000 €
  • Prezzo al mq: 2.311 €
  • Balconi: 1
  • Riscaldamento: Autonomo
  • Spazio Auto: No
  • Cantina: Si
  • Modificato il: 12/03/2026
  • Scheda: SC9617938

Stabile

  • Piano: 3
  • Classe Energetica: n.d.

Mappa e indirizzo

26100 Cremona (Cremona)
mappa mostra l'annuncio su mappa

Galleria Fotografica

Contatta l'inserzionista

Gruppo CPiace Srl

Gruppo CPiace Srl di Cremona propone in vendita questo immobile, contattali subito!

Annunci simili

Annunci immobiliari a Cremona (CR)

Copyright Š 2026 PCase.it. All rights reserved. Sede operativa MILANO. P.IVA 08508420968 - Condizioni d'uso e privacy