Preferiti

Sponsorizza

Stampa

Appartamento in vendita con posto auto scoperto a Oristano

  • 215.000€
  • 3 locali
  • 87 mq
  • Vendesi

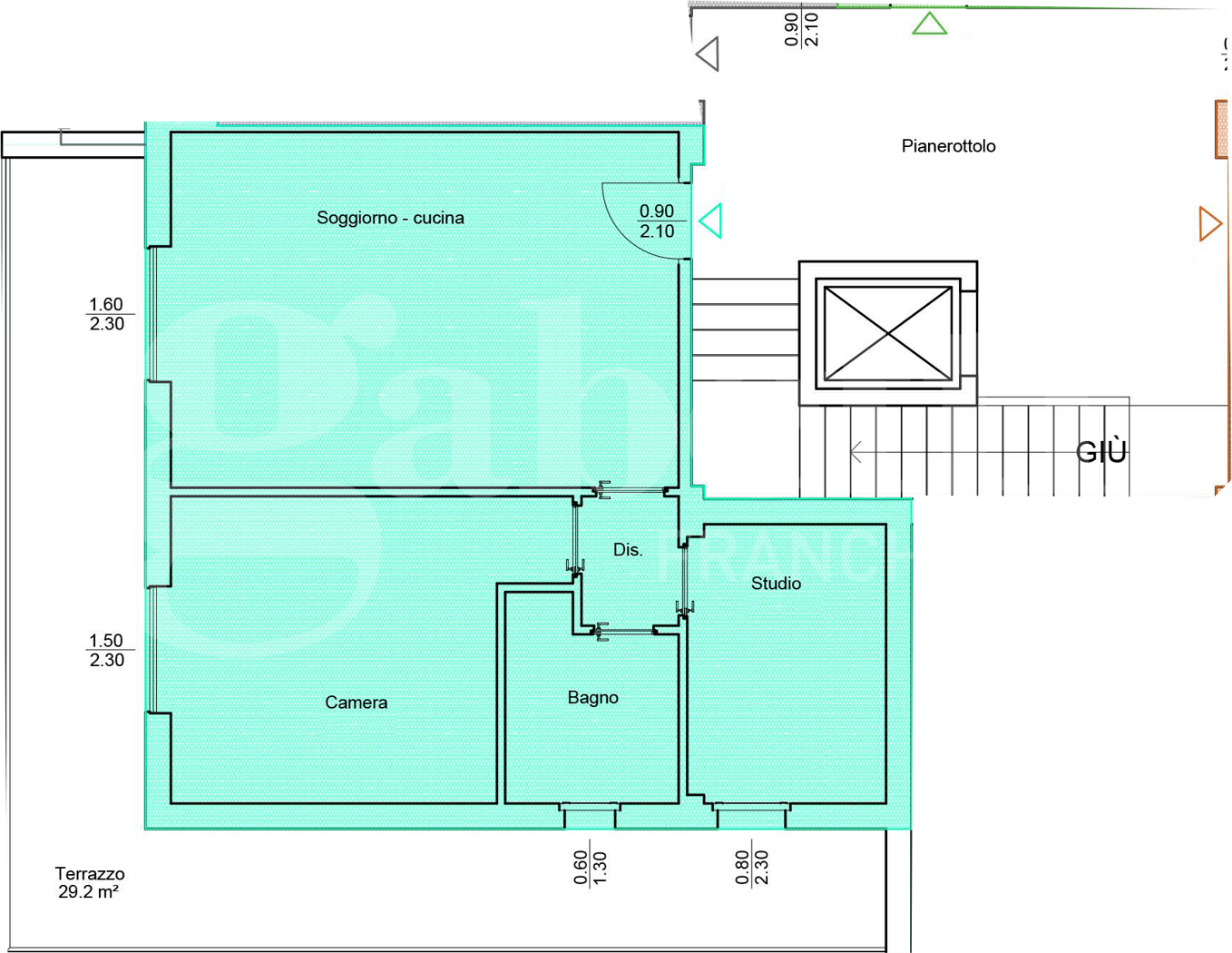
ORISTANO, VIA SARDEGNA Appartamento trilocale di nuova costruzione, posto al secondo piano di una palazzina servita di ascensore, dotato di terrazzo che gli gira su due lati di circa 30 mq. L'immobile completo di posto auto (con possibilit di avere uno spazioso box auto) e sar dotato di impianto di riscaldamento autonomo, impianto fotovoltaico sia privato che condominiale e impianto domotico.
Rifiniture interne completamente personalizzabili. Contatta l'inserzionista

F.L. SrlsF.L. Srls
Corso Umberto I 22
, Oristano (Oristano)
Visualizza Telefono

INFORMAZIONI SULL'IMMOBILE

  • Riferimento: Cod. rif 3177847VRG
  • Tipologia: Appartamento in Vendita
  • Locali: 3 Locali (2 camere, cucina angolo cottura e un bagno)
  • Piano: Ultimo Piano con ascensore
  • Stato: Nuovo
  • Prezzo: 215.000 €
  • Prezzo al mq: 2.471 €
  • Spese: 240,00 € (annuali)
  • Riscaldamento: Autonomo
  • Spazio Auto: Posto auto scoperto
  • Modificato il: 06/10/2025
  • Scheda: SC9472965

Stabile

  • Anno: 2025
  • Piano: 2 su 2 totali
  • Ascensore: Si
  • Giardino: Condominiale
  • Portineria: No
  • Classe Energetica: n.d.

Mappa e indirizzo

09170 Oristano (Oristano)
mappa mostra l'annuncio su mappa

Galleria Fotografica

Contatta l'inserzionista

F.L. Srls

F.L. Srls di Oristano propone in vendita questo immobile, contattali subito!

Annunci immobiliari a Oristano (OR)

Copyright Š 2026 PCase.it. All rights reserved. Sede operativa MILANO. P.IVA 08508420968 - Condizioni d'uso e privacy