Preferiti

Sponsorizza

Stampa

Appartamento in vendita da ristrutturare a Siracusa - adda gelone timoleonte

  • 78.000€
  • zona adda gelone timoleonte
  • 3 locali
  • 96 mq
  • Vendesi

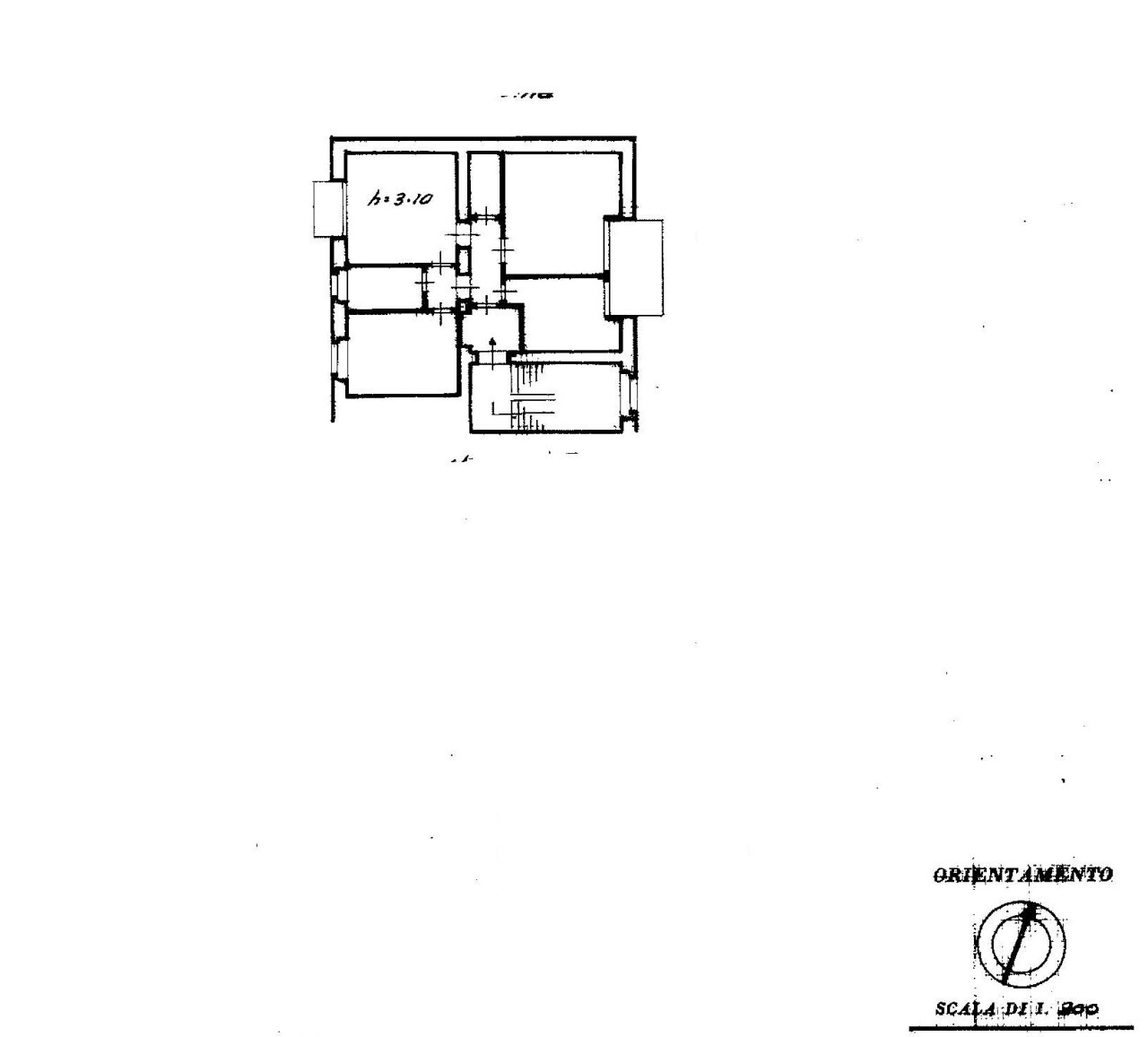
VIA G. DI NATALE: vendesi luminosissimo appartamento in condominio recintato con posto auto non assegnato, edificio non ascensorato, libero, Internamente , composto da ingresso, salone, 2 camere, cucina, bagno, ripostiglio, balcone e veranda, Classe energetica G, IPE: 151,30 kwh/mq annui.
Euro 78.000,00 mutuabili es. 10.000,00 + 345.00 al mese. IA10783 Per informazioni contattare Schiavone Immobiliare Piazza della Vittoria 8 SR 093169993 ***.*******.** Contatta l'inserzionista

Schiavone ImmobiliareSchiavone Immobiliare
Piazza della Vittoria 8
96100, Siracusa (Siracusa)
Visualizza Telefono

INFORMAZIONI SULL'IMMOBILE

  • Riferimento: IA10783
  • Tipologia: Appartamento in Vendita
  • Locali: 3 Locali (2 camere, cucina abitabile e un bagno)
  • Piano: Ultimo Piano
  • Stato: da Ristrutturare
  • Prezzo: 78.000 €
  • Prezzo al mq: 813 €
  • Spese: 240,00 € (annuali)
  • Balconi: 1
  • Modificato il: 20/04/2026
  • Scheda: SC9614919

Stabile

  • Anno: 1955
  • Piano: 3 su 3 totali
I.P.E.
151,3Kwh/m2
G

Mappa e indirizzo

96100 Siracusa (Siracusa), zona adda gelone timoleonte
mappa mostra l'annuncio su mappa

Galleria Fotografica

Contatta l'inserzionista

Schiavone Immobiliare

Schiavone Immobiliare di Siracusa propone in vendita questo immobile, contattali subito!

Annunci simili

Annunci immobiliari a Siracusa (SR)

Copyright Š 2026 PCase.it. All rights reserved. Sede operativa MILANO. P.IVA 08508420968 - Condizioni d'uso e privacy