Preferiti

Sponsorizza

Stampa

Appartamento in vendita con terrazzo a Livorno - accademia

  • 320.000€
  • zona accademia
  • 3 locali
  • 130 mq
  • Vendesi

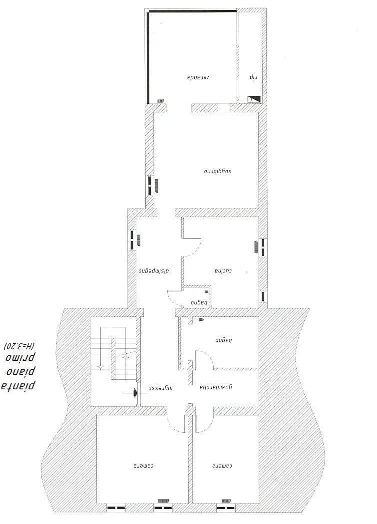
***.*******.** 322 - ZONA ACCADEMIA: Elegante appartamento in vendita a Livorno, situato al primo piano di un edificio residenziale.
L'immobile si compone di 3 locali disposti su una superficie di 130 mq. Lo stato di conservazione è buono, garantendo comfort e funzionalità. L'appartamento dispone di un ingresso tradizionale, CUCINA ABITABILE, SALA, TERRAZZA VERANDATA, RIPOSTIGLIO, 2 CAMERE E DOPPI SERVIZI.
Ideale per accogliere gli ospiti con stile.
Prezzo di vendita: ? 320.000 Euro. Volendo garage a parte al prezzo di ? 35.000,00. Contatta l'inserzionista

CENTRO TECNICO IMMOBILIARECENTRO TECNICO IMMOBILIARE
Via Roma, 57
, Livorno (Livorno)
Visualizza Telefono

INFORMAZIONI SULL'IMMOBILE

  • Riferimento: 1365650/1531/322
  • Tipologia: Appartamento in Vendita
  • Locali: 3 Locali (2 camere, cucina abitabile con doppi servizi)
  • Piano: Primo
  • Stato: Buono
  • Prezzo: 320.000 €
  • Prezzo al mq: 2.462 €
  • Terrazzi: 1 - 1 Mq
  • Riscaldamento: Autonomo
  • Modificato il: 26/11/2025
  • Scheda: SC9507887

Stabile

  • Piano: 1
  • Classe Energetica: n.d.

Mappa e indirizzo

57128 Livorno (Livorno), zona accademia
Borgo San Jacopo, Terrazza Mascagni, Villa Fabbricotti
mappa mostra l'annuncio su mappa

Contatta l'inserzionista

CENTRO TECNICO IMMOBILIARE

CENTRO TECNICO IMMOBILIARE di Livorno propone in vendita questo immobile, contattali subito!

Annunci simili

Annunci immobiliari a Livorno (LI)

Copyright Š 2026 PCase.it. All rights reserved. Sede operativa MILANO. P.IVA 08508420968 - Condizioni d'uso e privacy