Preferiti

Sponsorizza

Stampa

Appartamento in vendita con terrazzo a Aversa

  • 135.000€
  • 3 locali
  • 90 mq
  • Vendesi

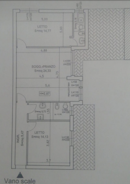
l'agenzia mattone sicuro re studio affiliato di aversa(ce)- centro via magenta n.40 propone in vendita: nel comune di aversa(ce) a pochi centinaia di metri dalla centralissima via garofano appartamento al primo piano di circa 100mq comprese pertinenze cosi meglio descritto: ingresso con corridoio, soggiorno living con cucina , 2 camere e 2 bagni , oltre ad un piccolo terrazzo con affaccio su strada ed un balcone affaccio cortile palazzo , dotato di ***.*******.** assegnato richiesta 135000? poco trattabili attualmente locato con rendita mensile di 480? , contratto che si rinnova annualmente quindi non solo lo proponiamo ad uso investimento ma anche come residenza personale.
si prega di astenersi perditempo e contattare solo se realmente interessati.
si offre consulenza gratuita in sede ai migliori tassi del momento con studio di fattibilita' immediata e delibera in tempi record contattateci anche solo per una consulenza per capire fin dove vi potete spingere per realizzare il vs sogno Contatta l'inserzionista

Mattone Sicuro ReMattone Sicuro Re
Via Magenta)
81031, Aversa (Caserta)
Visualizza Telefono

INFORMAZIONI SULL'IMMOBILE

  • Riferimento: AV2026-08
  • Tipologia: Appartamento in Vendita
  • Locali: 3 Locali (2 camere, cucina angolo cottura)
  • Piano: Primo con ascensore
  • Stato: Buono
  • Prezzo: 135.000 €
  • Prezzo al mq: 1.500 €
  • Balconi: 1
  • Terrazzi: 1
  • Riscaldamento: Autonomo
  • Modificato il: 23/04/2026
  • Scheda: SC9629310

Stabile

  • Piano: 1
  • Ascensore: Si
  • Portineria: No
A4

Galleria Fotografica

Contatta l'inserzionista

Mattone Sicuro Re

Mattone Sicuro Re di Aversa propone in vendita questo immobile, contattali subito!

Annunci simili

Annunci immobiliari a Aversa (CE)

Copyright Š 2026 PCase.it. All rights reserved. Sede operativa MILANO. P.IVA 08508420968 - Condizioni d'uso e privacy