Preferiti

Sponsorizza

Stampa

Appartamento in vendita con giardino a Porto Empedocle

  • 78.000€
  • 3 locali
  • 105 mq
  • Vendesi

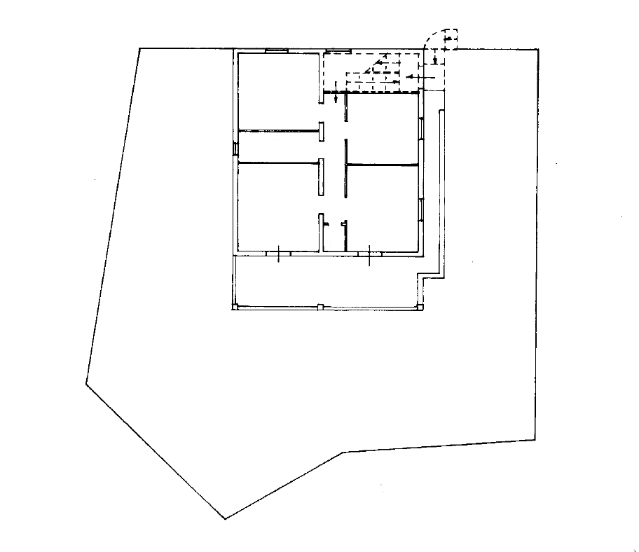
Proponiamo in vendita appartamento con veranda e ampio giardino a Porto Empedocle, in una zona tranquilla e residenziale, precisamente in Via Dei Platani (contrada Durrueli), posto al piano terra di un piccolo stabile composto da sole due unit immobiliari.
L'immobile ha una superfice di circa 105 mq e si presenta interamente da ristrutturare, offrendo cos l'opportunit di personalizzare gli ambienti secondo i propri gusti e le proprie esigenze.
A completare la propriet troviamo una veranda di circa 20 mq ideale per momenti di relax all'aperto, ed un ampio giardino di circa 330 mq, perfetto per chi ama spazi verdi o desidera creare un'area conviviale esterna.
Un'ottima opportunit per chi desidera vivere in un contesto riservato con spazio esterno e breve distanza dal mare. Per info: Agenzia Gabetti Agrigento, Via Dante Alighieri n°7, tel: 0922556187 - 0922467933 oppure cell: 3668258022. Contatta l'inserzionista

Naso Giovanni Luca D.I.Naso Giovanni Luca D.I.
Via Dante Alighieri 7
, Agrigento (Agrigento)
Visualizza Telefono

INFORMAZIONI SULL'IMMOBILE

  • Riferimento: DG951VRG
  • Tipologia: Appartamento in Vendita
  • Locali: 3 Locali (2 camere e un bagno)
  • Piano: Terra
  • Stato: da Ristrutturare
  • Prezzo: 78.000 €
  • Prezzo al mq: 743 €
  • Giardino: Privato
  • Spazio Auto: No
  • Modificato il: 05/02/2026
  • Scheda: SC9595891

Stabile

  • Anno: 1980
  • Piano: Terra su 2 totali
  • Portineria: No
I.P.E.
142Kwh/m2
G

Mappa e indirizzo

92014 Porto Empedocle (Agrigento)
mappa mostra l'annuncio su mappa

Galleria Fotografica

Contatta l'inserzionista

Naso Giovanni Luca D.I.

Naso Giovanni Luca D.I. di Agrigento propone in vendita questo immobile, contattali subito!

Annunci immobiliari a Porto Empedocle (AG)

Copyright Š 2026 PCase.it. All rights reserved. Sede operativa MILANO. P.IVA 08508420968 - Condizioni d'uso e privacy