Preferiti

Sponsorizza

Stampa

Appartamento in vendita con giardino a Cascina

  • 290.000€
  • 3 locali
  • 65 mq
  • Vendesi

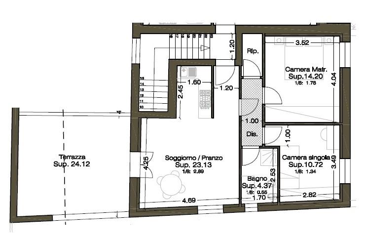
***.*******.** AC350460 - Cascina Appartamento Indipendente Come Nuovo (Classe Energetica A4) Nel cuore di un piccolo contesto residenziale di recente completa ristrutturazione, proponiamo appartamento posto al primo piano, pari al nuovo, dotato delle più moderne tecnologie per il risparmio energetico e il comfort abitativo.
Labitazione, ha ingresso indipendente tramite scala interna di 2. Allinterno si compone di: Ingresoo in soggiorno con zona cottura con accessi alla terrazza di 25 mq; Disimpegno notte, Camera matrimoniale, Camera media, Ripostiglio; Bagno moderno e finestrato.
È inoltre prevista la predisposizione per un secondo bagno.
Completano la proprietà due posti auto esclusivi, con predisposizione per colonnina di ricarica elettrica.
Dotazioni e caratteristiche principali: Classe energetica A4 Impianto fotovoltaico da 3 kW Climatizzazione caldo/freddo Ventilazione meccanica controllata Infissi in PVC a taglio termico e persiane in alluminio Assenza di fosse biologiche (collegamento diretto alla rete fognaria) Detrazioni fiscali attive su ogni unità immobiliare Soluzione ideale per chi cerca comfort, efficienza energetica e indipendenza, in un ambiente curato e tranquillo, a pochi minuti dal centro di Cascina e dai principali servizi. Contatta l'inserzionista

Immobiliare Dei Cavalieri CascinaImmobiliare Dei Cavalieri Cascina
via Tosco Romagnola 1282
, Cascina (Pisa)
Visualizza Telefono

INFORMAZIONI SULL'IMMOBILE

  • Riferimento: 1365886/429/AC350460
  • Tipologia: Appartamento in Vendita
  • Locali: 3 Locali (2 camere, cucina a vista e un bagno)
  • Piano: Primo
  • Stato: Nuovo
  • Prezzo: 290.000 €
  • Prezzo al mq: 4.462 €
  • Terrazzi: 1 - 1 Mq
  • Riscaldamento: Autonomo
  • Giardino: Privato - 100 Mq
  • Modificato il: 26/11/2025
  • Scheda: SC9507833

Stabile

  • Piano: 1
  • Classe Energetica: n.d.

Mappa e indirizzo

56021 Cascina (Pisa)
mappa mostra l'annuncio su mappa

Contatta l'inserzionista

Immobiliare Dei Cavalieri Cascina

Immobiliare Dei Cavalieri Cascina di Cascina propone in vendita questo immobile, contattali subito!

Annunci simili

Annunci immobiliari a Cascina (PI)

Copyright Š 2026 PCase.it. All rights reserved. Sede operativa MILANO. P.IVA 08508420968 - Condizioni d'uso e privacy