Preferiti

Sponsorizza

Stampa

Appartamento in vendita con giardino a Busto Garolfo

  • 280.000€
  • 3 locali
  • 90 mq
  • Vendesi

Residenza Pergolesi la nuova frontiera dellabitare a Busto Garolfo, dove natura e innovazione si incontrano per offrire unesperienza abitativa senza precedenti.
Situato nella zona residenziale, il progetto composto da due piccole palazzine, in un contesto che avvolge i residenti in un ambiente di tranquillit e benessere.
Questa oasi verde unisce la comodit della vita urbana con il piacere di vivere immersi nella natura, in un intreccio che integra armoniosamente paesaggio e architettura.
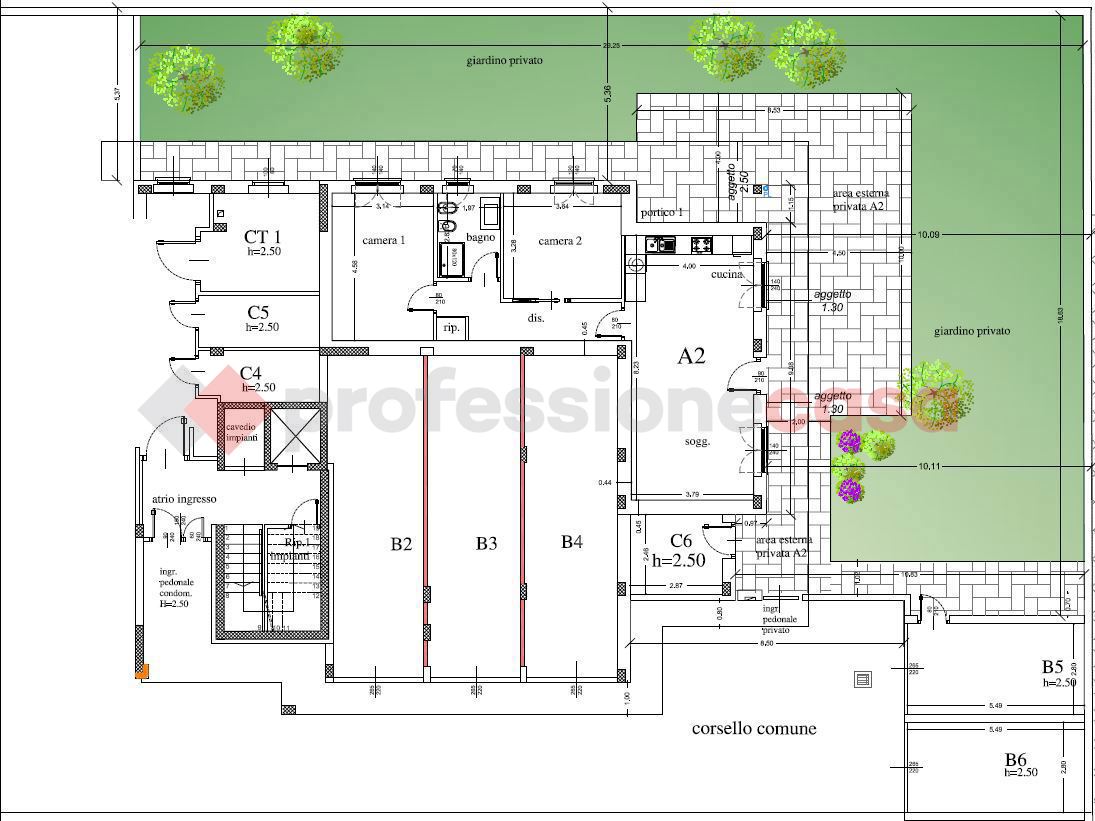
Situato al piano terra, con ingresso pedonale privato, l'appartamento si distingue per gli ambienti eleganti, luminosi e perfettamente distribuiti.
La doppia esposizione garantisce una straordinaria luminosit naturale durante tutta la giornata e unatmosfera ariosa e raffinata.
Gli spazi interni offrono una perfetta combinazione tra comfort e design contemporaneo: una zona living ampia e rappresentativa, ideale per accogliere ospiti o vivere momenti di relax, una cucina moderna dal carattere sofisticato, due camere da letto ben proporzionate ed il bagno rifinito con materiali di altissima qualit.
Il giardino privato arricchisce la proposta, completano il box doppio e la cantina.
Scopri Residenza Pergolesi e vivi un'esperienza abitativa che ridefinisce il concetto di casa. Contattaci ora. Contatta l'inserzionista

INFORMAZIONI SULL'IMMOBILE

  • Riferimento: Cod. rif 3304129VRG
  • Tipologia: Appartamento in Vendita
  • Locali: 3 Locali (2 camere, cucina abitabile e un bagno)
  • Piano: Terra
  • Stato: Nuovo
  • Prezzo: 280.000 €
  • Prezzo al mq: 3.111 €
  • Spese: 600,00 € (annuali)
  • Riscaldamento: Centralizzato
  • Giardino: Privato
  • Spazio Auto: Posto auto coperto
  • Cantina: Si
  • Modificato il: 18/03/2026
  • Scheda: SC9621626

Stabile

  • Anno: 2026
  • Piano: Terra su 2 totali
  • Ascensore: Si
I.P.E.
13Kwh/m2
A4

Mappa e indirizzo

20020 Busto Garolfo (Milano)
mappa mostra l'annuncio su mappa

Galleria Fotografica

Contatta l'inserzionista

Medioland Point snc di Morandini Giuliano Germano & C. & G.

Medioland Point snc di Morandini Giuliano Germano & C. & G. di Busto Garolfo propone in vendita questo immobile, contattali subito!

Annunci simili

Annunci immobiliari a Busto Garolfo (MI)

Copyright Š 2026 PCase.it. All rights reserved. Sede operativa MILANO. P.IVA 08508420968 - Condizioni d'uso e privacy