Preferiti

Sponsorizza

Stampa

Appartamento in vendita con giardino a Agrigento

  • 115.000€
  • 3 locali
  • 119 mq
  • Vendesi

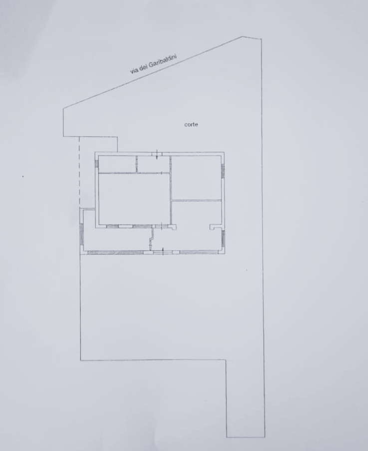
In una traversa del Viale Cavaleri Magazzeni, a pochi passi sia dalla zona balneare di San Leone sia dalla zona commerciale del Villaggio Mos, vendiamo appartamento sito al piano terra di una palazzina di sole due unit. L'immobile con ingresso autonomo e in buono stato, cos composto: Ingresso, salone, cucina, camera, bagno e ripostiglio.
Di pertinenza ampio spazio di circa 300 mq. Per info: Agenzia Gabetti Agrigento, Via Dante Alighieri n°7, Tel: 0922556187 - 0922467933, cell:3668258022. Contatta l'inserzionista

Naso Giovanni Luca D.I.Naso Giovanni Luca D.I.
Via Dante Alighieri 7
, Agrigento (Agrigento)
Visualizza Telefono

INFORMAZIONI SULL'IMMOBILE

  • Riferimento: SI946VRG
  • Tipologia: Appartamento in Vendita
  • Locali: 3 Locali (2 camere, cucina abitabile e un bagno)
  • Piano: Terra
  • Stato: Buono
  • Prezzo: 115.000 €
  • Prezzo al mq: 966 €
  • Giardino: Privato
  • Spazio Auto: No
  • Modificato il: 15/01/2026
  • Scheda: SC9582625

Stabile

  • Piano: Terra su 1 totali
  • Portineria: No
I.P.E.
144Kwh/m2
G

Mappa e indirizzo

92100 Agrigento (Agrigento)
mappa mostra l'annuncio su mappa

Galleria Fotografica

Contatta l'inserzionista

Naso Giovanni Luca D.I.

Naso Giovanni Luca D.I. di Agrigento propone in vendita questo immobile, contattali subito!

Annunci simili

Annunci immobiliari a Agrigento (AG)

Copyright Š 2026 PCase.it. All rights reserved. Sede operativa MILANO. P.IVA 08508420968 - Condizioni d'uso e privacy