Preferiti

Sponsorizza

Stampa

Appartamento in vendita con box a Montefiore Conca

  • 102.013€
  • 3 locali
  • 119 mq
  • Vendesi

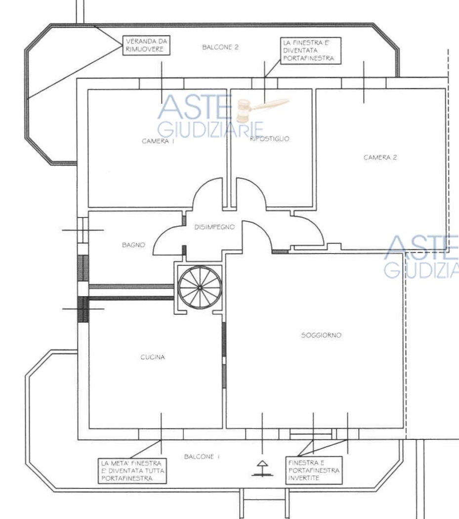
Vendesi in Asta a Montefiore Conca, Appartamento con corte pertinenziale composta da ingresso/soggiorno, cucina, disimpegno, due camere, bagno, ripostiglio, una scala a chiocciola che conduce all'autorimessa nel piano seminterrato e due balconi.
Per Info ed appuntamenti: 800129769 oppure 3519120169.
Possibilità di Mutuo prima casa al 100% in 20 anni. ***.*******.** - Servizio Aste Contatta l'inserzionista

Consulenti Immobiliari Associati SrlConsulenti Immobiliari Associati Srl
V.le Guglielmo Oberdan 444
47521, Cesena (Forlė-Cesena)
Visualizza Telefono

INFORMAZIONI SULL'IMMOBILE

  • Riferimento: 2614
  • Tipologia: Appartamento in Vendita
  • Locali: 3 Locali (2 camere, cucina abitabile e un bagno)
  • Stato: Buono
  • Prezzo: 102.013 €
  • Prezzo al mq: 857 €
  • Balconi: 2
  • Spazio Auto: Box singolo
  • Modificato il: 27/11/2024
  • Scheda: SC9420679

Stabile

  • Classe Energetica: n.d.

Mappa e indirizzo

47834 Montefiore Conca (Rimini)
mappa mostra l'annuncio su mappa

Galleria Fotografica

Contatta l'inserzionista

Consulenti Immobiliari Associati Srl

Consulenti Immobiliari Associati Srl di Cesena propone in vendita questo immobile, contattali subito!

Annunci simili

Annunci immobiliari a Montefiore Conca (RN)

Copyright Š 2026 PCase.it. All rights reserved. Sede operativa MILANO. P.IVA 08508420968 - Condizioni d'uso e privacy