Preferiti

Sponsorizza

Stampa

Appartamento in vendita con box a Inveruno

  • 207.000€
  • 3 locali
  • 78 mq
  • Vendesi

NUOVA REALIZZAZIONE: Prossimo al centro cittadino, in piccola corte lombarda, proponiamo APPARTAMENTI 2/3 locali con POSTO AUTO di pertinenza.
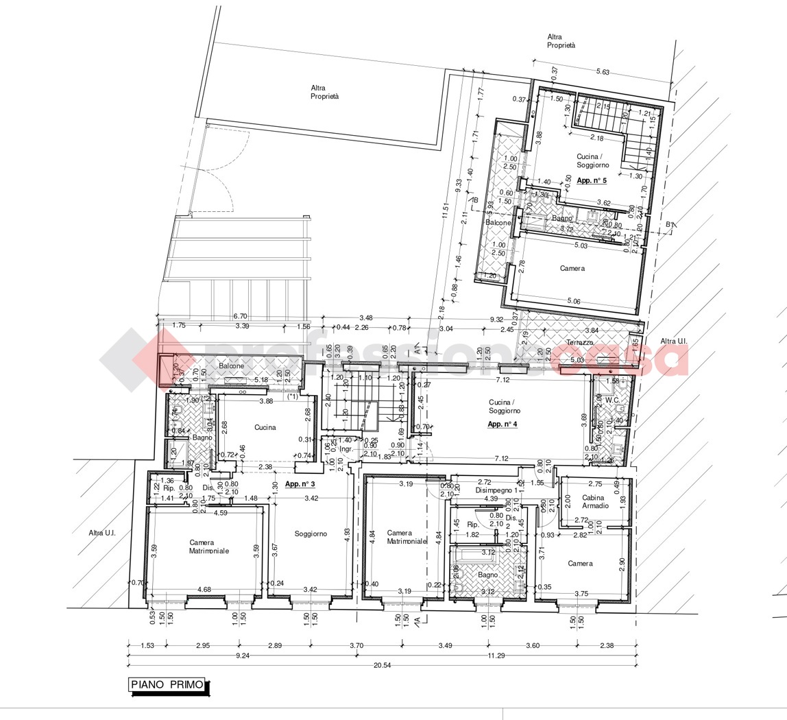
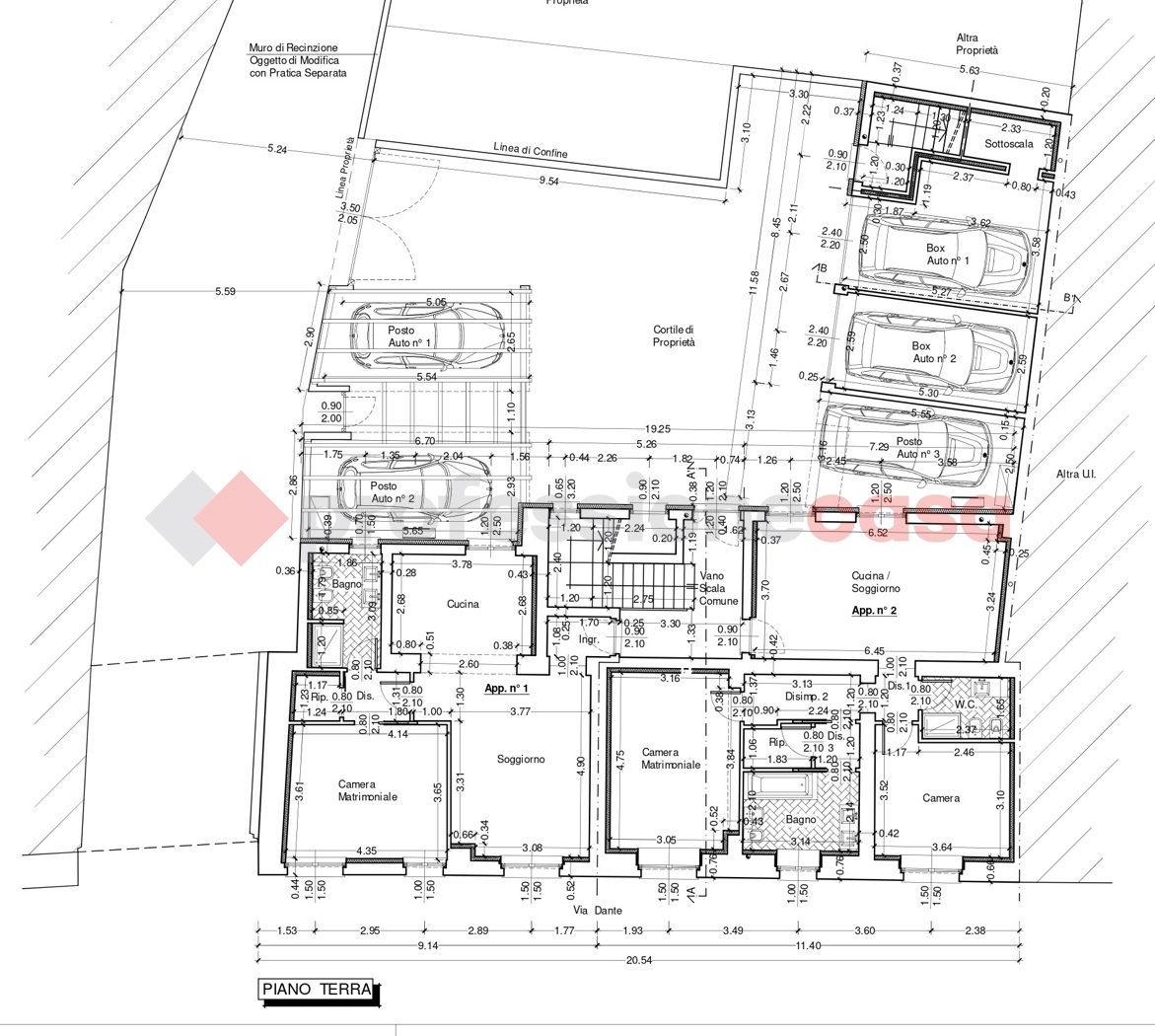
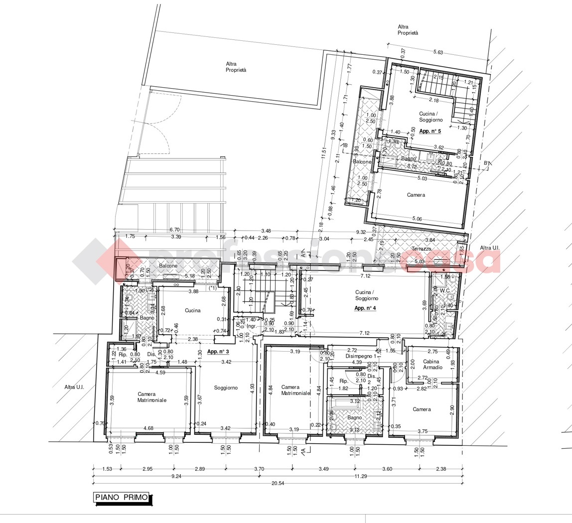
Appartamento 1 - Piano Terra- 78 mq + Posto auto 207.000 Appartamento 2 - Piano Terra- 97 mq + Posto auto 265.000 Appartamento 3 - Piano Primo- 78 mq + Balcone 7 mq + Posto auto 212.000 Appartamento 4 - Piano Primo- 105 mq + Balcone 10 mq + Posto auto 295.000 Vedi piante allegate Il progetto esecutivo e la realizzazione del fabbricato, TRATTASI di RISTRUTTURAZIONE di COMPLESSO cortilizio, nonch la scelta dei materiali, sono stati valutati nel rispetto delle leggi vigenti in materia di risparmio energetico e requisiti acustici passivi nei fabbricati Di seguito si elencano le caratteristiche principali che concorrono al raggiungimento della classe energetica A4 sullintero complesso residenziale e che garantiscono una classe energetica non inferiore alla A per ogni singola unit immobiliare: Ottimo livello di coibentazione ed isolamento termico e acustico delle superfici opache rivolte verso lesterno; Ottimo livello di trasmittanza termica dei serramenti installati (triplo vetro + sei camere); Impianto di riscaldamento e produzione di acqua calda sanitaria a pompa di calore con totale funzionamento elettrico (NO GAS METANO); Impianto di raffrescamento idronico (stessa unit esterna pompa di calore reversibile); Impianto fotovoltaico circa 3,2 kW di picco dedicato.
Capitolato consultabile in UFFICIO ONERI A CARICO DEI PROMISSARI ACQUIRENTI Le denunce catastali, i contratti delle utenze ENEL, ENIA-AGAC e TELECOM.
LA VENDITA E' SOGGETTA ad IVA (4% agevolazione prima casa 10% seconda casa). Contatta l'inserzionista

Gamm srlGamm srl
Via Dante Alighieri 4/6
, Inveruno (Milano)
Visualizza Telefono

INFORMAZIONI SULL'IMMOBILE

  • Riferimento: Cod. rif 3276114VRG
  • Tipologia: Appartamento in Vendita
  • Locali: 3 Locali (2 camere e un bagno)
  • Piano: Terra
  • Prezzo: 207.000 €
  • Prezzo al mq: 2.654 €
  • Spese: 120,00 € (annuali)
  • Riscaldamento: Autonomo
  • Spazio Auto: Box singolo
  • Modificato il: 16/01/2026
  • Scheda: SC9501932

Stabile

  • Anno: 2025
  • Piano: Terra su 2 totali
I.P.E.
10Kwh/m2
A1

Mappa e indirizzo

20010 Inveruno (Milano)
mappa mostra l'annuncio su mappa

Galleria Fotografica

Contatta l'inserzionista

Gamm srl

Gamm srl di Inveruno propone in vendita questo immobile, contattali subito!

Annunci simili

Annunci immobiliari a Inveruno (MI)

Copyright Š 2026 PCase.it. All rights reserved. Sede operativa MILANO. P.IVA 08508420968 - Condizioni d'uso e privacy