Preferiti

Sponsorizza

Stampa

Terreno Industriale in vendita nuovo a Bolano - debbio

  • 95.000€
  • zona debbio
  • 10 locali
  • 240 mq
  • Vendesi

In Vendita Terreno Edificabile in Località Debbio di Ceparana -TE161 - Terreno in ottima posizione sia solare che espositiva, con facile accesso carrabile.
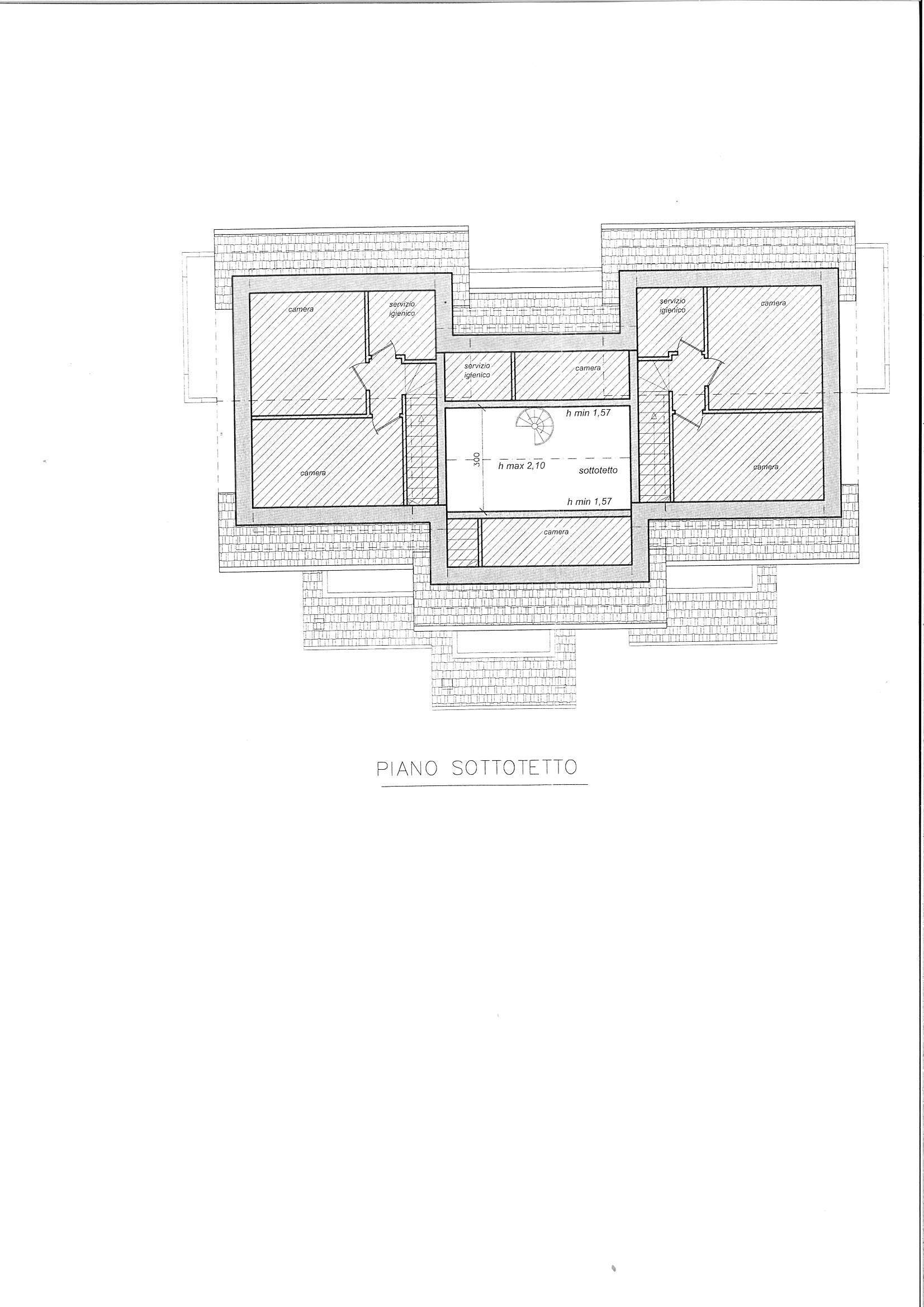
Vendiamo terreno con progetto in fase di realizzazione per la costruzione di villetta bifamiliare e/o schiera di tre unità per un totale di mq. 240 interrati , piano terra mq. 240 abitativo, ed infine mq. 150 di sottotetto praticabile non abitabile, il tutto suddivisibili appunto in due/ tre unità. Alleghiamo progetto di piano e luogo della realizzazione.
Prezzo da convenirsi rispetto alla metratura prescelta dall'acquirente nel caso di acquisto di una (o più) unità immobiliare realizzata dal costruttore oppure vendita in toto del terreno con progetto concessionato con realizzo diretto della costruzione da parte dell'acquirente che ne acquista il solo terreno senza la realizzazione dell'opera costruttiva.
Info in agenzia. Contatta l'inserzionista

Albani RiccardoAlbani Riccardo
Via Sarzana 1029 La Spezia e Via Roma 14 Lerici
19136, La Spezia (La Spezia)
Visualizza Telefono

INFORMAZIONI SULL'IMMOBILE

  • Riferimento: TE161
  • Tipologia: Terreno in Vendita
  • Locali: 10 Locali
  • Piano: Primo
  • Stato: Nuovo
  • Prezzo: 95.000 €
  • Prezzo al mq: 396 €
  • Modificato il: 15/01/2026
  • Scheda: SC9423041

Stabile

  • Piano: 1
  • Classe Energetica: Immobile non soggetto a certificazione energetica

Mappa e indirizzo

19020 Bolano (La Spezia), zona debbio
mappa mostra l'annuncio su mappa

Galleria Fotografica

Contatta l'inserzionista

Albani Riccardo

Albani Riccardo di La Spezia propone in vendita questo immobile, contattali subito!

Annunci immobiliari a Bolano (SP)

Copyright Š 2026 PCase.it. All rights reserved. Sede operativa MILANO. P.IVA 08508420968 - Condizioni d'uso e privacy