Preferiti

Sponsorizza

Stampa

Terreno Edificabile in vendita a Quartu Sant'Elena

  • 138.000€
  • 240 mq
  • Vendesi

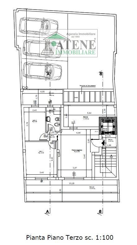
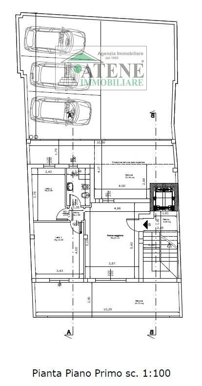
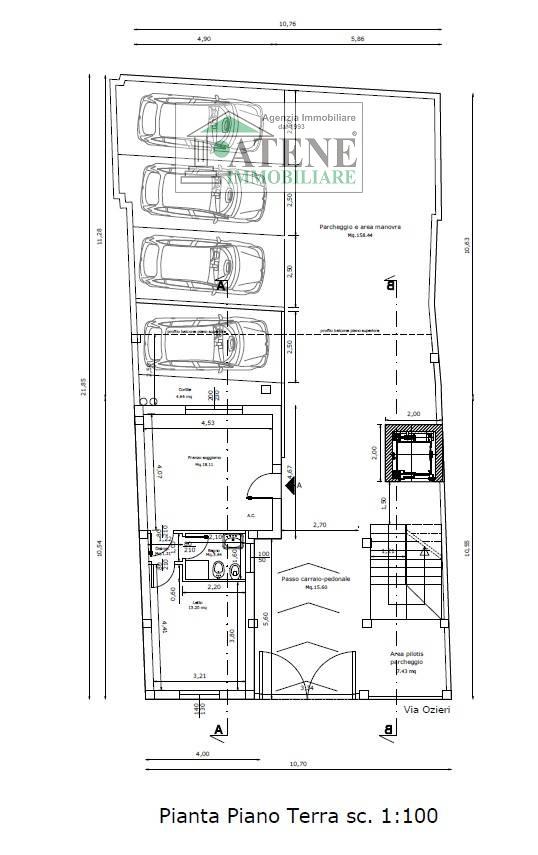
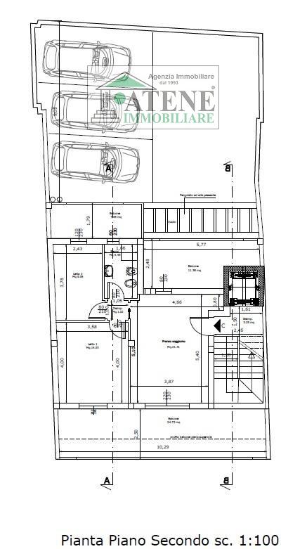
Quartu via Ozieri vendesi terreno edificabile mq. 2470 con casa da demolire al piano terra.
Progetto approvato per n. 4 unit abitative, 3 trivani e 1 bivano.
MC realizzabili 822,22 Euro 138.000,00 Atene Immobiliare 070.814460 Contatta l'inserzionista

ATENE IMMOBILIARE DI BASCIU MASSIMILIANOATENE IMMOBILIARE DI BASCIU MASSIMILIANO
VIA VITTORIO EMANUELE 110
09045, Quartu Sant'Elena (Cagliari)
Visualizza Telefono

INFORMAZIONI SULL'IMMOBILE

  • Riferimento: 874
  • Tipologia: Terreno Residenziale in Vendita
  • Locali: Edificabile di 240 m²
  • Piano: Terra
  • Prezzo: 138.000 €
  • Prezzo al mq: 575 €
  • Modificato il: 26/04/2026
  • Scheda: SC9612491

Stabile

  • Piano: Terra
  • Classe Energetica: n.d.

Mappa e indirizzo

09045 Quartu Sant'Elena (Cagliari)
mappa mostra l'annuncio su mappa

Galleria Fotografica

Contatta l'inserzionista

ATENE IMMOBILIARE DI BASCIU MASSIMILIANO

ATENE IMMOBILIARE DI BASCIU MASSIMILIANO di Quartu Sant'Elena propone in vendita questo immobile, contattali subito!

Annunci simili

Annunci immobiliari a Quartu Sant'Elena (CA)

Copyright Š 2026 PCase.it. All rights reserved. Sede operativa MILANO. P.IVA 08508420968 - Condizioni d'uso e privacy