Preferiti

Sponsorizza

Stampa

Terreno in vendita con box a San Giovanni Teatino in via puccini - sambuceto

  • 550.000€
  • zona sambuceto
  • 1 locale
  • 3000 mq
  • Vendesi

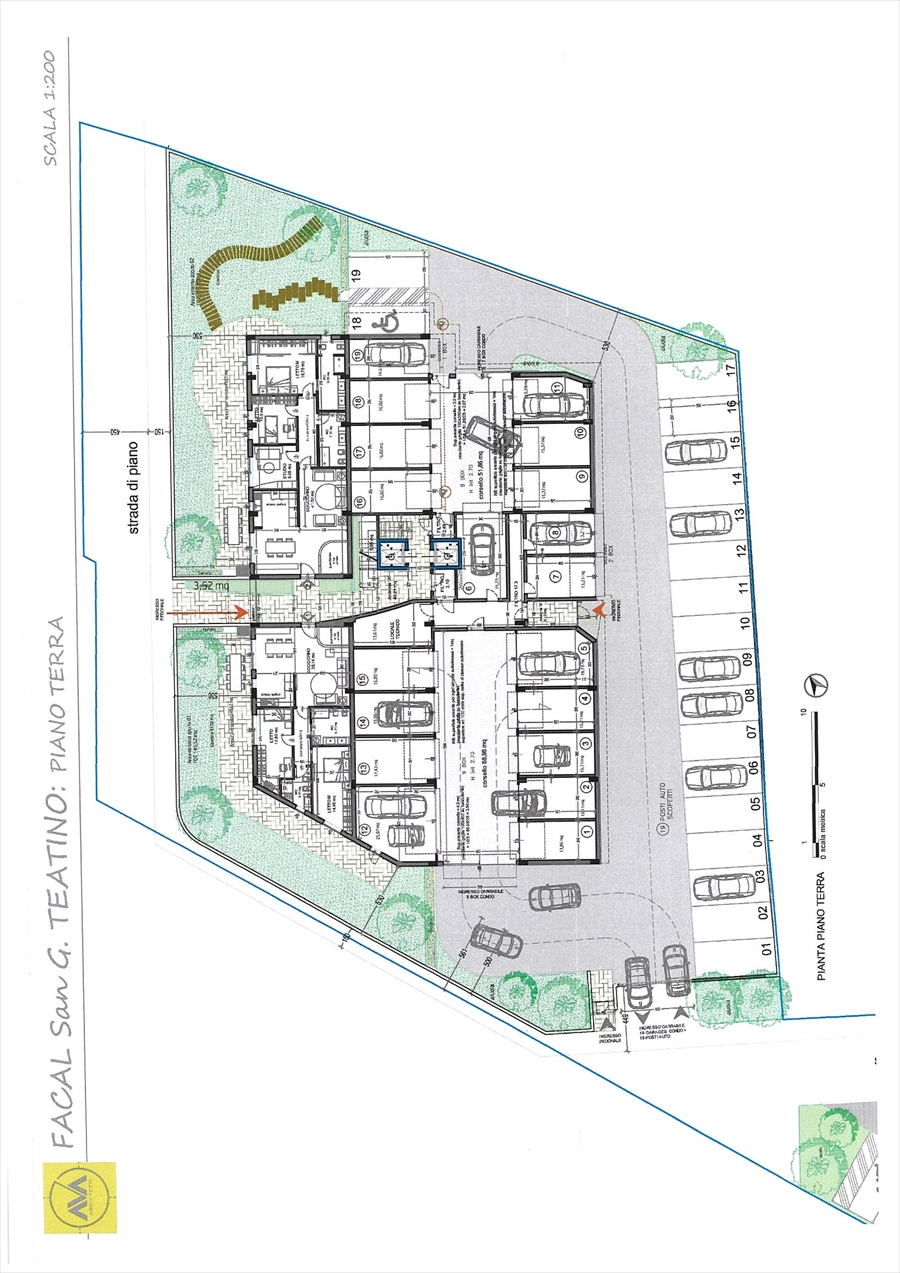
sambuceto via puccini lotto di terreno edificabile mq 3.000 circa per realizzazione di n.19 appartamenti con garages e posti auto progetto approvato possibile permuta totale o parziale Contatta l'inserzionista

Futura CasaFutura Casa
Corso Marrucino, 182
66100, Chieti (Chieti)
Visualizza Telefono

INFORMAZIONI SULL'IMMOBILE

  • Riferimento: FC404
  • Tipologia: Terreno in Vendita
  • Locali: 1 Locali ( 1 camera)
  • Prezzo: 550.000 €
  • Prezzo al mq: 183 €
  • Spazio Auto: Box singolo
  • Modificato il: 11/02/2026
  • Scheda: SC9599347

Stabile

  • Giardino: Condominiale
  • Classe Energetica: n.d.

Mappa e indirizzo

Terreno sito in via puccini
66020 San Giovanni Teatino (Chieti), zona sambuceto
mappa mostra l'annuncio su mappa

Galleria Fotografica

Contatta l'inserzionista

Futura Casa

Futura Casa di Chieti propone in vendita questo immobile, contattali subito!

Annunci immobiliari a San Giovanni Teatino (CH)

Copyright Š 2026 PCase.it. All rights reserved. Sede operativa MILANO. P.IVA 08508420968 - Condizioni d'uso e privacy