Preferiti

Sponsorizza

Stampa

Terreno Agricolo in vendita a Muro Leccese in contrada maccallč

  • 50.000€
  • 7730 mq
  • Vendesi

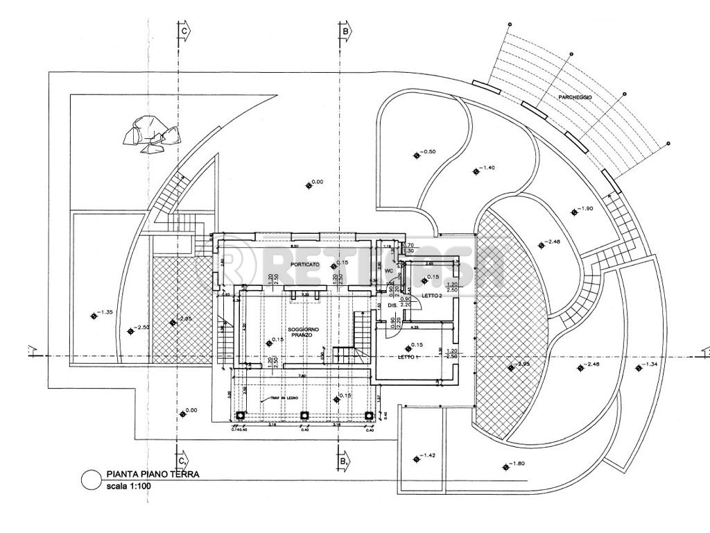
Nelle immediate vicinanze di Maglie, in agro di Muro Leccese, proponiamo in vendita un ampio terreno agricolo, totalmente recintato, con annesso un rustico di villa in parte realizzato.
La costruzione al momento presenta la realizzazione del rustico del seminterrato, che si può ampliare terminando l'immobile.
In tutto si possono costruire 80 mq a piano terra, oltre gli 80 mq già realizzati a piano seminterrato.
Progetto già depositato e approvato.
Ottimo affare! Contatta l'inserzionista

Stile Casa S.a.sStile Casa S.a.s
via Roma 67
73024, Maglie (Lecce)

INFORMAZIONI SULL'IMMOBILE

  • Riferimento: 50contradamaccalle
  • Tipologia: Terreno in Vendita
  • Locali: Agricolo di 7730 m²
  • Prezzo: 50.000 €
  • Prezzo al mq: 6 €
  • Modificato il: 15/04/2025
  • Scheda: SC9370851

Stabile

  • Classe Energetica: n.d.

Galleria Fotografica

Contatta l'inserzionista

Stile Casa S.a.s

Stile Casa S.a.s di Maglie propone in vendita questo immobile, contattali subito!

Annunci immobiliari a Muro Leccese (LE)

Copyright © 2026 PCase.it. All rights reserved. Sede operativa MILANO. P.IVA 08508420968 - Condizioni d'uso e privacy