Preferiti

Sponsorizza

Stampa

Stabile/Palazzo in vendita da ristrutturare a Roma in via francesco grimaldi

  • trattativa riservata
  • 1800 mq
  • Vendesi

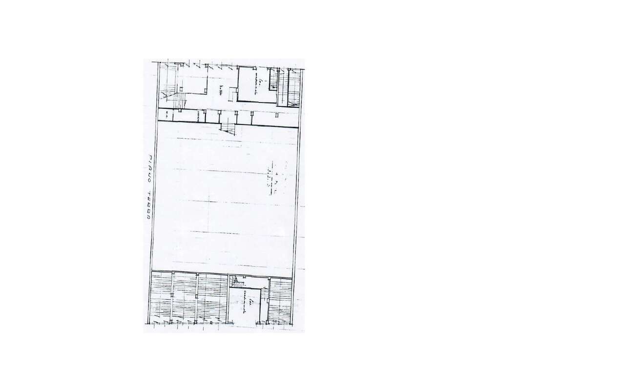
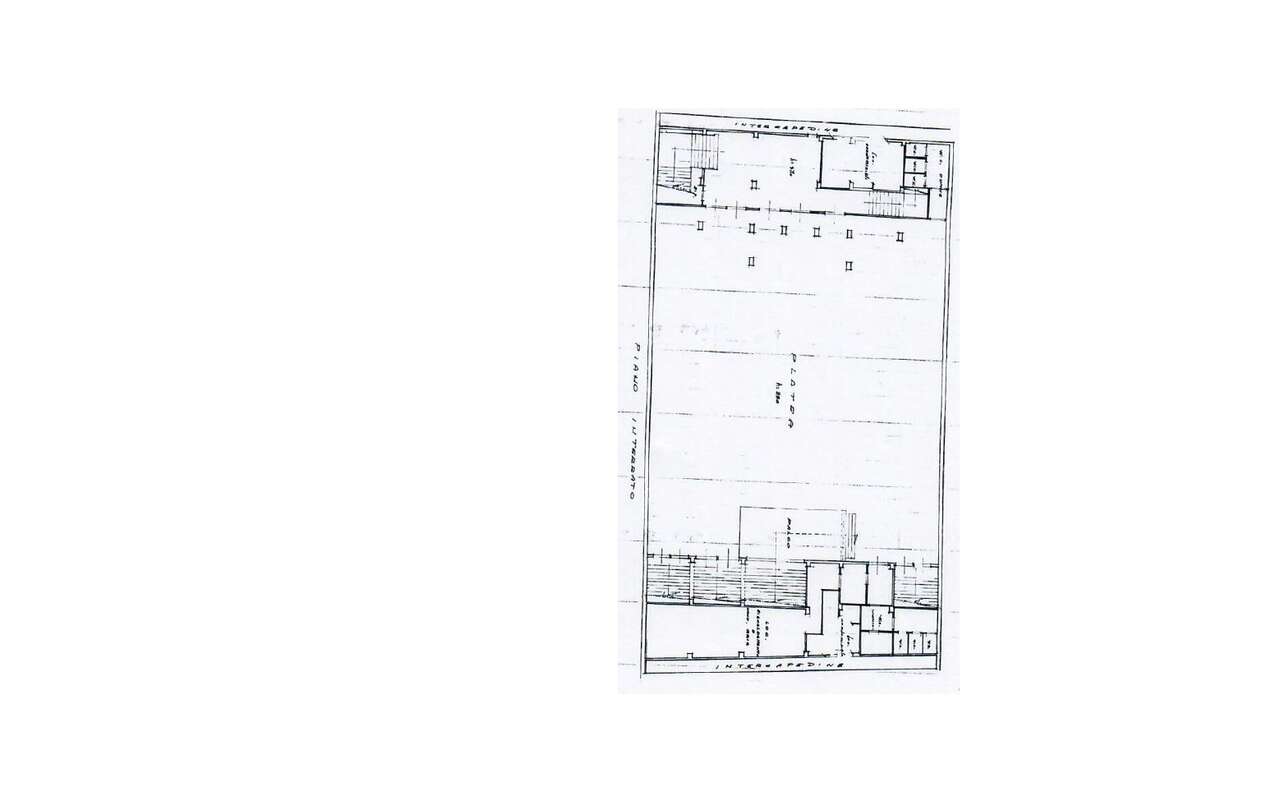
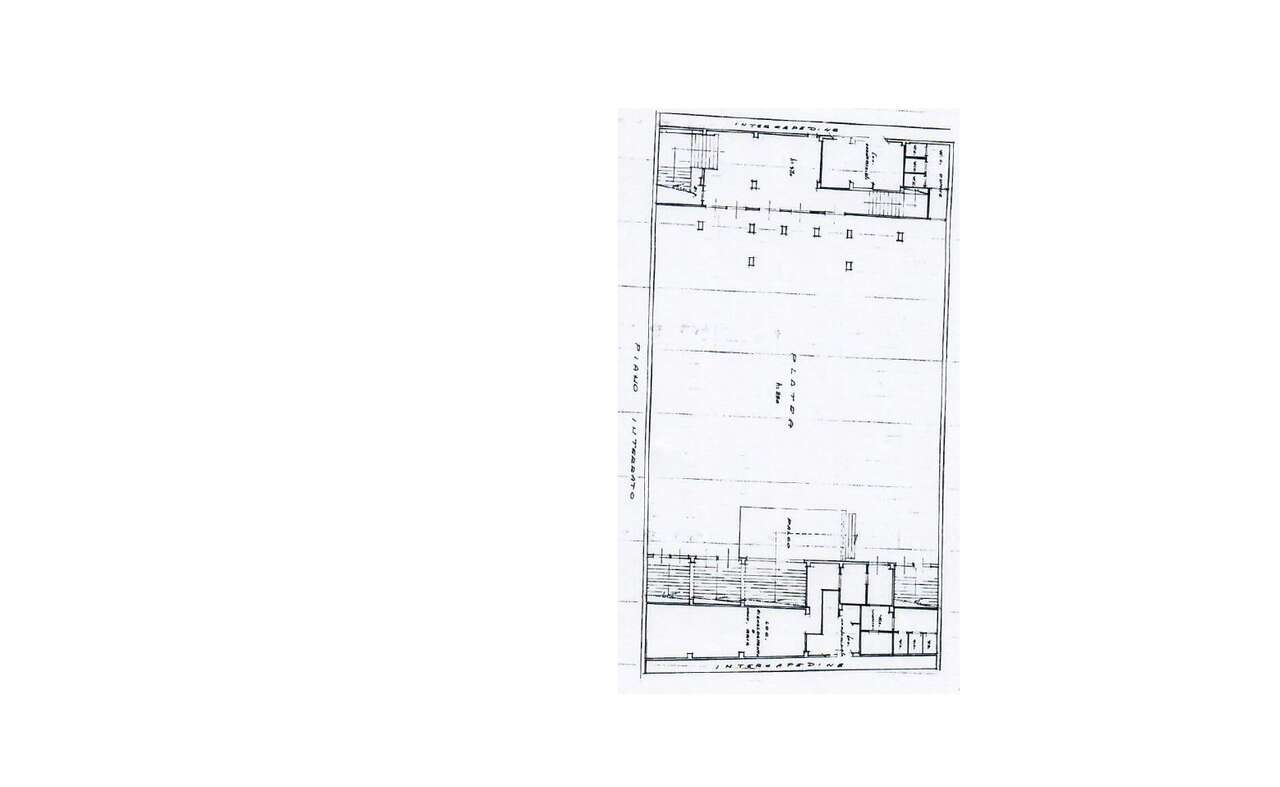
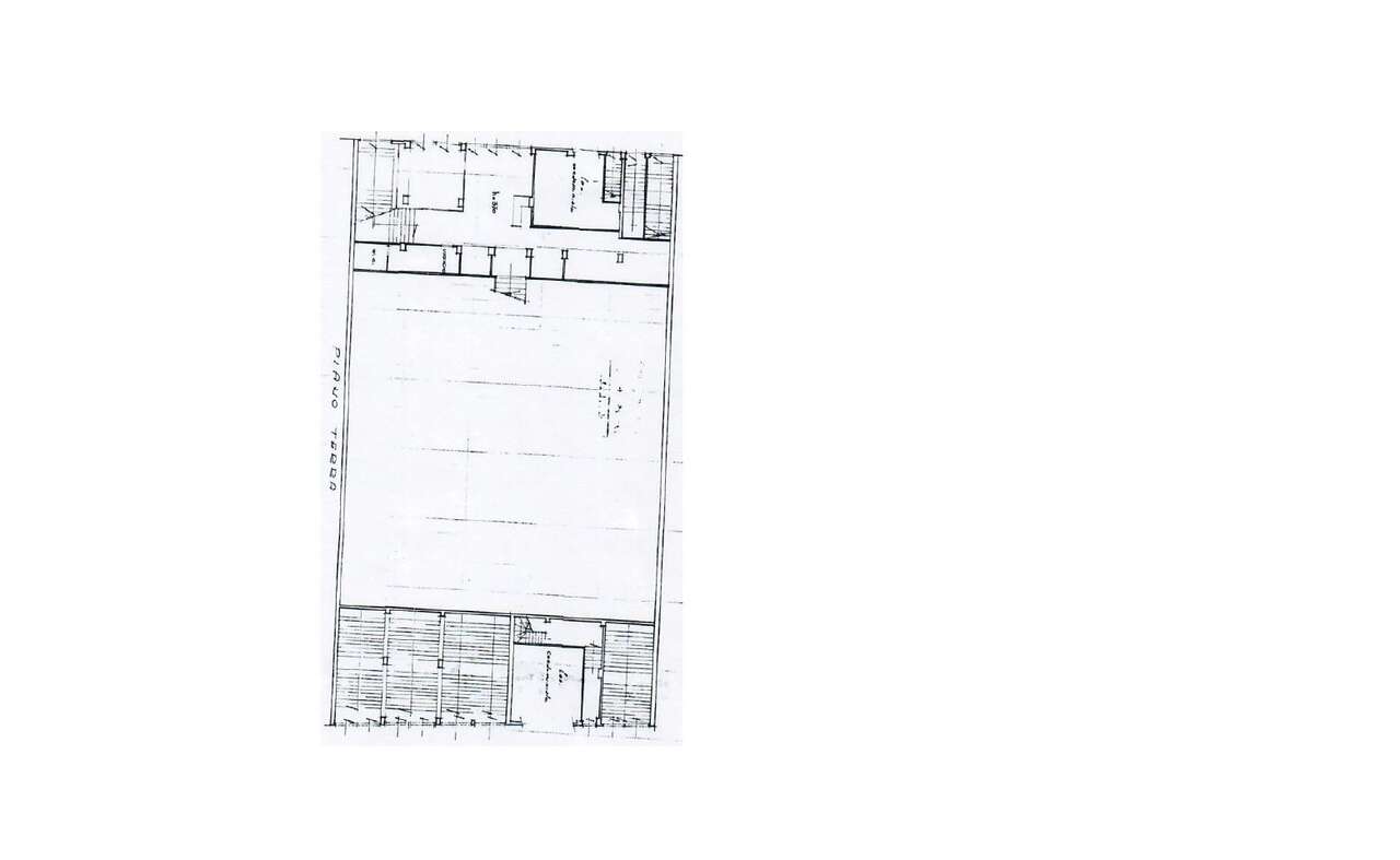
Proponiamo in vendita, anche con formula rent to buy, un immobile di straordinario pregio e di ampia metratura, con circa 1.800 mq pronti a trasformarsi in uno spazio commerciale o polifunzionale di grande impatto.
La sua principale forza risiede nella versatilità progettuale: gli ambienti offrono la possibilità di creare un grande locale commerciale, uno showroom di rappresentanza, un centro polifunzionale o la sede di un'azienda che desideri distinguersi per immagine e posizione.
La struttura dispone di due ingressi indipendenti su vie parallele, caratteristica che permette di pensare a configurazioni flessibili, suddividendo gli spazi in unità autonome o in aree integrate, a seconda delle esigenze operative o di investimento.
Il piano interrato, attualmente destinato a locali tecnici e di servizio, può essere facilmente riconvertito in garage, parcheggi o magazzini; il piano terra, ampio e luminoso, si presta perfettamente ad ospitare spazi open space dedicati ad attività commerciali, espositive o ricreative; mentre il piano primo può accogliere uffici, aree direzionali o ulteriori ambienti operativi.
L'immobile, ex cinema con destinazione catastale D/3, conserva una forte identità architettonica che ne conferisce carattere e fascino, rendendolo pronto a rinascere in una nuova veste capace di valorizzare al massimo la posizione strategica e le dimensioni generose.
La formula rent to buy rappresenta un ulteriore vantaggio, permettendo di entrare subito in possesso della proprietà e di pianificare l'acquisto definitivo in modo flessibile e strategico.
La combinazione tra posizione, dimensioni, flessibilità e memoria storica rende questa proposta un'opportunità rara, ideale per chi desidera trasformare un immobile di grande personalità in un progetto contemporaneo e di forte impatto (Cod. 12215). Contatta l'inserzionista

INFORMAZIONI SULL'IMMOBILE

  • Riferimento: 12215
  • Tipologia: Stabile/Palazzo in Vendita
  • Stato: da Ristrutturare
  • Bagni: 5
  • Riscaldamento: Autonomo
  • Modificato il: 09/04/2026
  • Scheda: SC9477211

Stabile

I.P.E.
1Kwh/m2
G

Mappa e indirizzo

Stabile/Palazzo sito in via francesco grimaldi
00135 Roma (Roma)
Marconi, San Paolo
mappa mostra l'annuncio su mappa

Galleria Fotografica

Contatta l'inserzionista

TFT BUILDING MANAGEMENT GEST. SERV. IMMOBILIARI

TFT BUILDING MANAGEMENT GEST. SERV. IMMOBILIARI di Roma propone in vendita questo immobile, contattali subito!

Annunci simili

Annunci immobiliari a Roma (RM)

Copyright Š 2026 PCase.it. All rights reserved. Sede operativa MILANO. P.IVA 08508420968 - Condizioni d'uso e privacy