Preferiti

Sponsorizza

Stampa

Stabile/Palazzo in vendita da ristrutturare a Macerata

  • 2.000.000€
  • 100 locali
  • 4700 mq
  • Vendesi

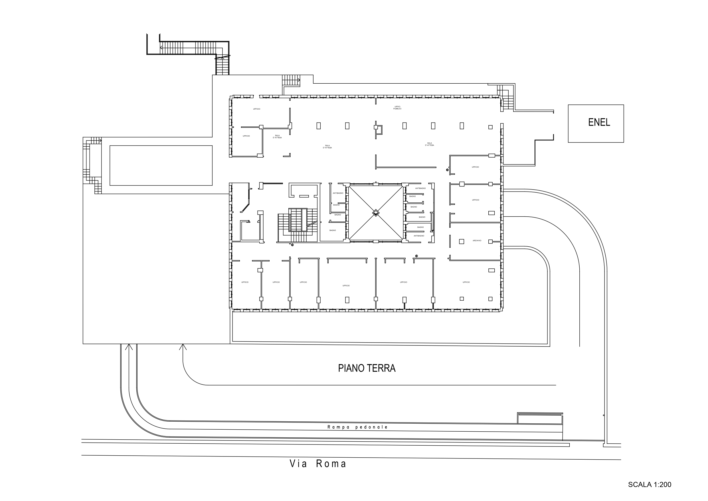
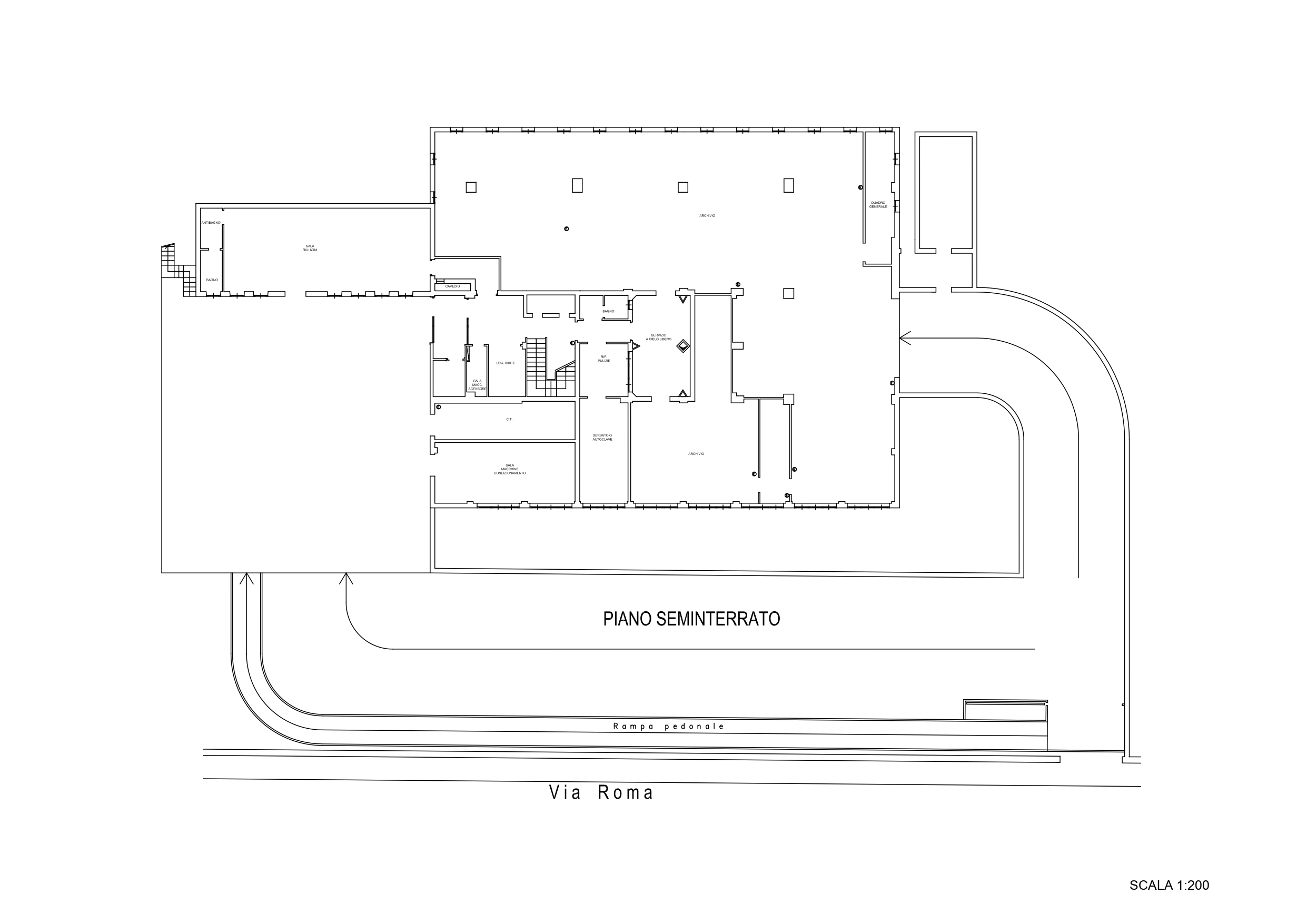
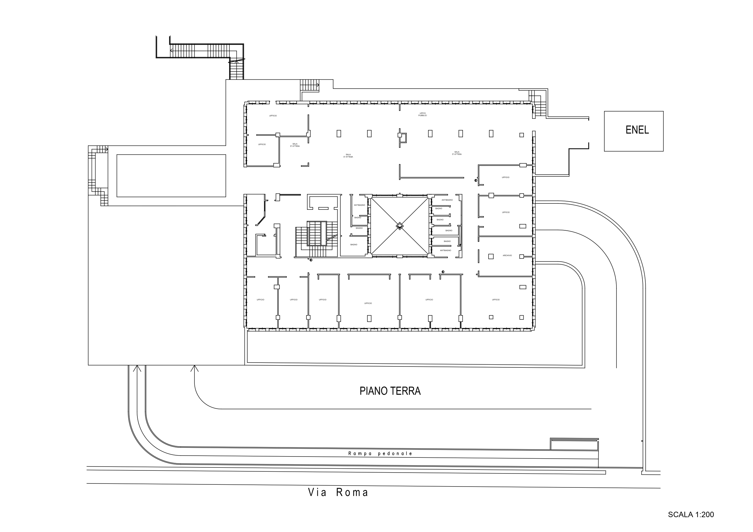
MACERATA - in zona ideale per la realizzazione di uno STUDENTATO, COMPLESSO EDILIZIO formato da un fabbricato principale di forma in pianta quadrata ubicato al centro del lotto che si sviluppa con 5 piani fuori terra ed un piano interrato oltre ulteriore volume accessorio seminterrato, con corte esterna caratterizzata da una viabilità interna a rampe, superfici verdi e alberature perimetrali.
Laccesso al lotto è servito da due ingressi pedonali oltre ad un ingresso carrabile ed è interamente recintato.
Gli edifici sono in disuso da tempo con struttura eseguita in c.a. a pilastri e solai in laterocemento, tamponature con pannellature in cemento armato granagliato, copertura rivestita con manto in pannelli zinco-rame. Ottima opportunità per ogni tipo di esigenza.
Possibile cambio in Residenziale di Completamento, previo confronto con gli organi competenti.
Presente locazione di mq 30 su lastrico solare per antenna telefonica, con possibile disdetta di breve durata.
Prezzo trattabile.
Rif. 7035 ***.*******.** Contatta l'inserzionista

DiLeoImmobiliareDiLeoImmobiliare
via Pasubio n. 10 piano 2°
63074, San Benedetto del Tronto (Ascoli Piceno)
Visualizza Telefono

INFORMAZIONI SULL'IMMOBILE

  • Riferimento: 7035
  • Tipologia: Stabile/Palazzo in Vendita
  • Locali: 100 Locali
  • Piano: Terra
  • Stato: da Ristrutturare
  • Prezzo: 2.000.000 €
  • Prezzo al mq: 426 €
  • Modificato il: 16/04/2026
  • Scheda: SC9638378

Stabile

  • Anno: 1972
  • Piano: Terra su 5 totali
I.P.E.
175Kwh/m2
G

Mappa e indirizzo

62100 Macerata (Macerata)
mappa mostra l'annuncio su mappa

Galleria Fotografica

Contatta l'inserzionista

DiLeoImmobiliare

DiLeoImmobiliare di San Benedetto del Tronto propone in vendita questo immobile, contattali subito!

Annunci immobiliari a Macerata (MC)

Copyright Š 2026 PCase.it. All rights reserved. Sede operativa MILANO. P.IVA 08508420968 - Condizioni d'uso e privacy