Preferiti

Sponsorizza

Stampa

Stabile/Palazzo in vendita con giardino a Militello in Val di Catania in via umberto i

  • 650.000€
  • 9 locali
  • 985 mq
  • Vendesi

INVESTIMENTO BLINDATO: Palazzo 5 Livelli Rendita 6,15% (Locato Ministero degli Interni) Proponiamo in vendita un prestigioso palazzo indipendente su 5 livelli, situato in posizione strategica a Militello in Val di Catania.
L'immobile rappresenta una delle soluzioni di investimento più sicure attualmente sul mercato, essendo interamente locato al Ministero degli Interni.
Analisi Finanziaria dell'Investimento Prezzo di Richiesta: ? 650.000,00 Canone Annuo: ? 40.000,00 Rendimento Lordo: 6,15% annuo Conduttore: Ministero degli Interni (Pagamenti garantiti dallo Stato) Punti di Forza dell'Asset Solidità del Conduttore: Rischio di morosità inesistente.
La locazione istituzionale garantisce flussi di cassa certi e puntuali.
Indipendenza Totale: Trattandosi di un cielo-terra (terratetto) su 5 livelli, non ci sono spese condominiali o interferenze con terzi.
Asset Patrimoniale: Un intero palazzo di 5 piani costituisce una riserva di valore destinata a rivalutarsi nel tempo.
Manutenzione: Immobile gestito con standard istituzionali, garantendo il decoro della struttura.
Caratteristiche Tecniche Tipologia: Palazzo Cielo-Terra (Terratetto). Sviluppo: 5 livelli fuori terra collegati internamente.
Stato: Stato conservativo buono.
Nota per l'investitore: In un mercato volatile, un rendimento superiore al 6% garantito da un ente statale rappresenta la "Safe Haven" (porto sicuro) per eccellenza nel settore immobiliare.
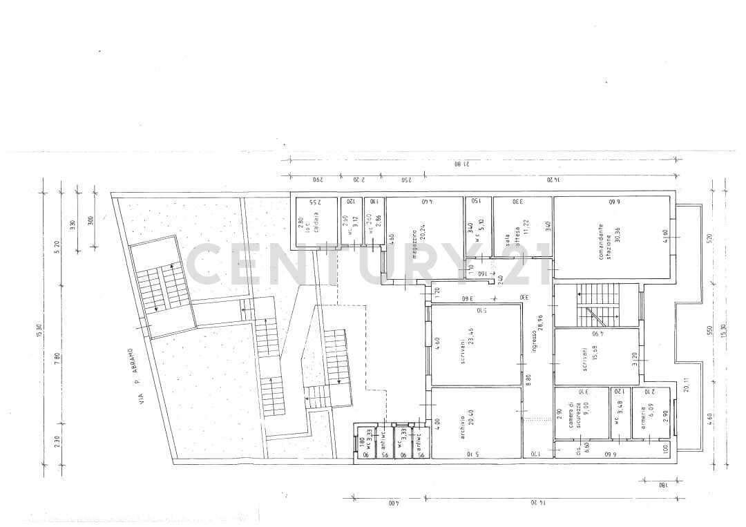
Per ricevere la documentazione contrattuale (contratto di locazione e planimetrie) o per fissare un sopralluogo contattaci Contatta l'inserzionista

CENTURY 21 ExcellentiaCENTURY 21 Excellentia
Via Antonio Pacinotti 30
95122, Catania (Catania)
Visualizza Telefono

INFORMAZIONI SULL'IMMOBILE

  • Riferimento: 012-024
  • Tipologia: Stabile/Palazzo in Vendita
  • Locali: 9 Locali
  • Piano: Terra
  • Stato: da Ristrutturare
  • Bagni: 1
  • Prezzo: 650.000 €
  • Prezzo al mq: 660 €
  • Balconi: 1
  • Terrazzi: 1
  • Giardino: Privato
  • Modificato il: 31/03/2026
  • Scheda: SC9614918

Stabile

  • Piano: Terra su 5 totali
G

Mappa e indirizzo

Stabile/Palazzo sito in via umberto i
95043 Militello in Val di Catania (Catania)
mappa mostra l'annuncio su mappa

Galleria Fotografica

Contatta l'inserzionista

CENTURY 21 Excellentia

CENTURY 21 Excellentia di Catania propone in vendita questo immobile, contattali subito!

Annunci immobiliari a Militello in Val di Catania (CT)

Copyright Š 2026 PCase.it. All rights reserved. Sede operativa MILANO. P.IVA 08508420968 - Condizioni d'uso e privacy