Preferiti

Sponsorizza

Stampa

Rustico in vendita a Monteriggioni in strada dell'uccellatoio

  • 85.000€
  • 82 mq
  • Vendesi

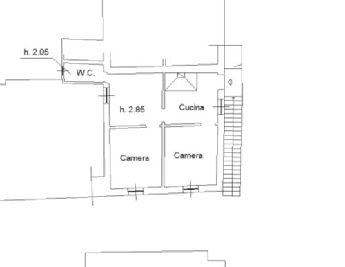
Nella campagna tra Siena e Monteriggioni, a 4 km dal Ceppo, vendesi porzione angolare di casale, sue due piani.
Al piano terra unico vano di 30 mq attualmente destinato a magazzino con uscita diretta sul giardino unibile al sopra previo cambio d uso in civile abitazione: al piano primo, con accesso da scala esterna, appartamento di 52 mq divisi in quattro vani e bagno.
Giardino di circa 60 mq. Il tutto necessita di ristrutturazione completa Per informazioni 338 5495159 Contatta l'inserzionista

AD Immobiliare di Brogi GianniAD Immobiliare di Brogi Gianni
VIA CASSIA NORD 22
53035, Monteriggioni (Siena)
Visualizza Telefono

INFORMAZIONI SULL'IMMOBILE

  • Riferimento: AP566
  • Tipologia: Rustico in Vendita
  • Bagni: 1
  • Prezzo: 85.000 €
  • Prezzo al mq: 1.037 €
  • Riscaldamento: Autonomo
  • Modificato il: 11/02/2026
  • Scheda: SC9052983

Stabile

  • Classe Energetica: n.d.

Galleria Fotografica

Contatta l'inserzionista

AD Immobiliare di Brogi Gianni

AD Immobiliare di Brogi Gianni di Monteriggioni propone in vendita questo immobile, contattali subito!

Annunci simili

Annunci immobiliari a Monteriggioni (SI)

Copyright Š 2026 PCase.it. All rights reserved. Sede operativa MILANO. P.IVA 08508420968 - Condizioni d'uso e privacy