Preferiti

Sponsorizza

Stampa

Rustico in vendita con giardino a Arezzo

  • 400.000€
  • 380 mq
  • Vendesi

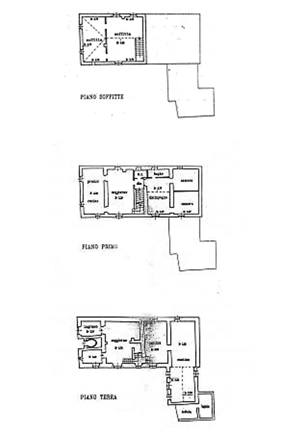
In zona tranquilla nei pressi di Puliciano vendesi bellissimo casale del '700 . L'immobile di 380 mq e' in buone condizioni , un terreno di proprieta' di circa 3800mq con 300 ulivi e annessi da recuperare.
Si sviluppa su tre livelli , l'ultimo dei quali allo stato grezzo.
Oggetto molto interessante . Rif. K35 400.000 Contatta l'inserzionista

TUSCANY HOUSETUSCANY HOUSE
VIA GUIDO MONACO 41/b AREZZO
52100, Arezzo (Arezzo)
Visualizza Telefono

INFORMAZIONI SULL'IMMOBILE

  • Riferimento: K35
  • Tipologia: Rustico in Vendita
  • Stato: Buono
  • Bagni: 2
  • Prezzo: 400.000 €
  • Prezzo al mq: 1.053 €
  • Riscaldamento: Autonomo
  • Giardino: Privato - 20000 Mq
  • Spazio Auto: No
  • Cantina: Si
  • Mansarda: Si
  • Modificato il: 15/12/2025
  • Scheda: SC8742872

Stabile

  • Classe Energetica: n.d.

Mappa e indirizzo

52100 Arezzo (Arezzo)
San Zeno, Puliciano, Rigutino
mappa mostra l'annuncio su mappa

Galleria Fotografica

Contatta l'inserzionista

TUSCANY HOUSE

TUSCANY HOUSE di Arezzo propone in vendita questo immobile, contattali subito!

Annunci simili

Annunci immobiliari a Arezzo (AR)

Copyright Š 2026 PCase.it. All rights reserved. Sede operativa MILANO. P.IVA 08508420968 - Condizioni d'uso e privacy