Preferiti

Sponsorizza

Stampa

Appartamento in vendita a Follo in via xv febbraio 10

  • 76.500€
  • 4 locali
  • 72 mq
  • Vendesi

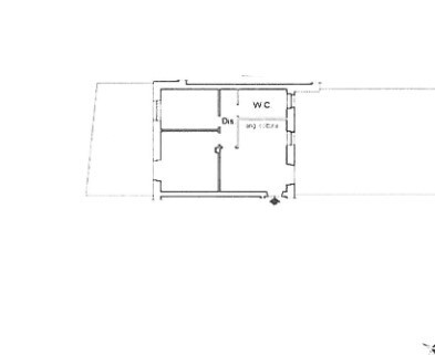
Quota di 1/1 di piena proprietà di appartamento con ingresso indipendente della superficie commerciale di 71,70 mq. facente parte di un compendio immobiliare di recente edificazione con parti ancora in corso costruzione, sito in località Pian di Follo, in Via XV Febbraio 10/A, Comune di Follo (SP). L'appartamento posto al piano terra è composto da soggiorno con angolo cottura, disimpegno, due camere e servizio igienico, - Il Prezzo visualizzato è la Base d'Asta in quanto limmobile è oggetto di esecuzione immobiliare venduto tramite Asta Giudiziaria.
- L'immobile aggiudicato, viene venduto libero e sgombro da persone cose ed ipoteche nello stato di fatto e di diritto in cui si trova.
- Non rappresentiamo il Tribunale, ma lavoriamo nell'esclusivo interesse del potenziale acquirente per garantire un acquisto sicuro.
- I consulenti di ASTE ITALIA ti assisteranno in tutte le attività dell'iter giudiziario dalla visita dell'immobile fino alla consegna chiavi.
- Contatta il nostro Servizio Clienti , i nostri operatori sono a disposizione per chiarire i molteplici dubbi per partecipare alle ASTE. Contatta l'inserzionista

DOMY ONLINE S.R.L.DOMY ONLINE S.R.L.
Via San Lorenzo 5 Int. 41
16123, Genova (Genova)
Visualizza Telefono

INFORMAZIONI SULL'IMMOBILE

  • Riferimento: SP92/20L6-2304-26-11
  • Tipologia: Appartamento in Vendita
  • Locali: 4 Locali (3 camere, cucina angolo cottura e un bagno)
  • Piano: Terra
  • Stato: Buono
  • Prezzo: 76.500 €
  • Prezzo al mq: 1.063 €
  • Modificato il: 12/01/2026
  • Scheda: SC9580159

Stabile

  • Piano: Terra
G

Mappa e indirizzo

Appartamento sito in via xv febbraio 10
19020 Follo (La Spezia)
mappa mostra l'annuncio su mappa

Galleria Fotografica

Contatta l'inserzionista

DOMY ONLINE S.R.L.

DOMY ONLINE S.R.L. di Genova propone in vendita questo immobile, contattali subito!

Annunci simili

Annunci immobiliari a Follo (SP)

Copyright Š 2026 PCase.it. All rights reserved. Sede operativa MILANO. P.IVA 08508420968 - Condizioni d'uso e privacy