Preferiti

Sponsorizza

Stampa

Appartamento in vendita a Empoli - centro

  • 295.000€
  • zona centro
  • 4 locali
  • 115 mq
  • Vendesi

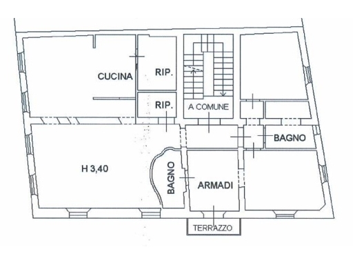
empoli centralissimo in piazza farinata degli uberti, nota come piazza dei leoni, al piano nobile di palazzo d'epoca bellissimo appartamento di 4 ampi vani mq 120 circa composto da ingresso con comodo ripostiglio uso guardaroba, ampio soggiorno con due belle finestre che affacciano sulla piazza, sala da pranzo con cucina schermata da una pannellatura a vetri, dalla cucina si accede a una zona dispensa/lavanderia, tornando all'ingresso troviamo un disimpegno notte con l'accesso a un servizio finestrato e a due camere da letto matrimoniali di cui una dotata di servizio privato e stanza guardaroba con accesso al balcone.
termo singolo, aria condizionata.
ape in corso di redazione.
rif m100 rif.1/0206 - (agg. 27/01/2026) Contatta l'inserzionista

VB IMMOBILIARE DI BOSCHI DONATELLAVB IMMOBILIARE DI BOSCHI DONATELLA
VIA PISANA 287/A
50143, Firenze (Firenze)
Visualizza Telefono

INFORMAZIONI SULL'IMMOBILE

  • Riferimento: 1/0206
  • Tipologia: Appartamento in Vendita
  • Locali: 4 Locali (3 camere con doppi servizi)
  • Piano: Primo
  • Prezzo: 295.000 €
  • Prezzo al mq: 2.565 €
  • Balconi: 1
  • Riscaldamento: Autonomo
  • Spazio Auto: No
  • Modificato il: 26/01/2026
  • Scheda: SC9590160

Stabile

  • Anno: 1900
  • Piano: 1 su 3 totali
  • Classe Energetica: n.d.

Mappa e indirizzo

50053 Empoli (Firenze), zona centro
mappa mostra l'annuncio su mappa

Galleria Fotografica

Contatta l'inserzionista

VB IMMOBILIARE DI BOSCHI DONATELLA

VB IMMOBILIARE DI BOSCHI DONATELLA di Firenze propone in vendita questo immobile, contattali subito!

Annunci simili

Annunci immobiliari a Empoli (FI)

Copyright Š 2026 PCase.it. All rights reserved. Sede operativa MILANO. P.IVA 08508420968 - Condizioni d'uso e privacy