Preferiti

Sponsorizza

Stampa

Appartamento in vendita a Agrigento

  • 48.000€
  • 4 locali
  • 105 mq
  • Vendesi

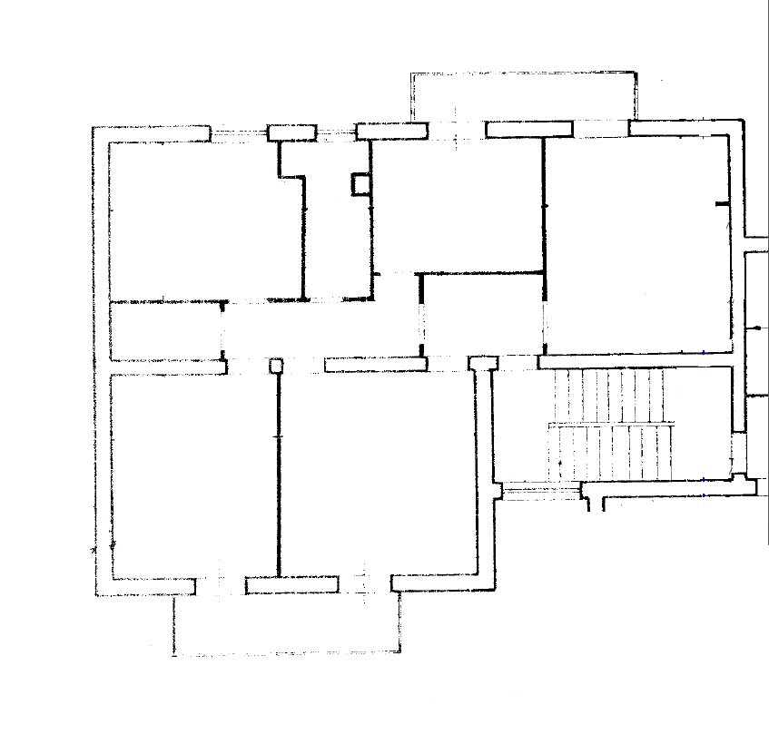
Appartamento ottima posizione posto al 2° piano senza ascensore, buona esposizione sud e nord, suddiviso in cucina abitabile, soggiorno, tre camere da letto, camerino e bagno.
Buona le condizioni dell'immobile, pavimentazione uniforme, buone finiture.
La zona ben servita, vicino al supermercato, alle scuole e ad esercizi di prima necessit.
Dotato di area esterna pubblica per il parcheggio delle auto. Per info: Agenzia Gabetti Agrigento, Via Dante Alighieri n°7, tel: 0922556187 - 0922467933 oppure cell: 3668258022 Contatta l'inserzionista

Naso Giovanni Luca D.I.Naso Giovanni Luca D.I.
Via Dante Alighieri 7
, Agrigento (Agrigento)
Visualizza Telefono

INFORMAZIONI SULL'IMMOBILE

  • Riferimento: LA1010VRG
  • Tipologia: Appartamento in Vendita
  • Locali: 4 Locali (3 camere, cucina abitabile e un bagno)
  • Piano: Ultimo Piano
  • Stato: Buono
  • Prezzo: 48.000 €
  • Prezzo al mq: 457 €
  • Balconi: 1
  • Spazio Auto: No
  • Modificato il: 20/11/2025
  • Scheda: SC9503583

Stabile

  • Piano: 2 su 2 totali
  • Portineria: No
I.P.E.
142Kwh/m2
G

Mappa e indirizzo

92100 Agrigento (Agrigento)
mappa mostra l'annuncio su mappa

Galleria Fotografica

Contatta l'inserzionista

Naso Giovanni Luca D.I.

Naso Giovanni Luca D.I. di Agrigento propone in vendita questo immobile, contattali subito!

Annunci simili

Annunci immobiliari a Agrigento (AG)

Copyright Š 2026 PCase.it. All rights reserved. Sede operativa MILANO. P.IVA 08508420968 - Condizioni d'uso e privacy