Preferiti

Sponsorizza

Stampa

Appartamento in vendita ristrutturato a Nepi

  • 68.000€
  • 4 locali
  • 85 mq
  • Vendesi

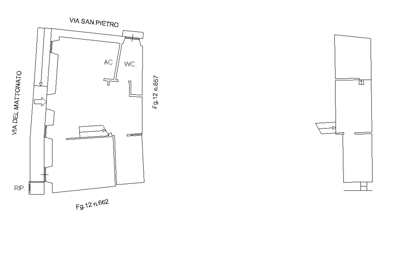
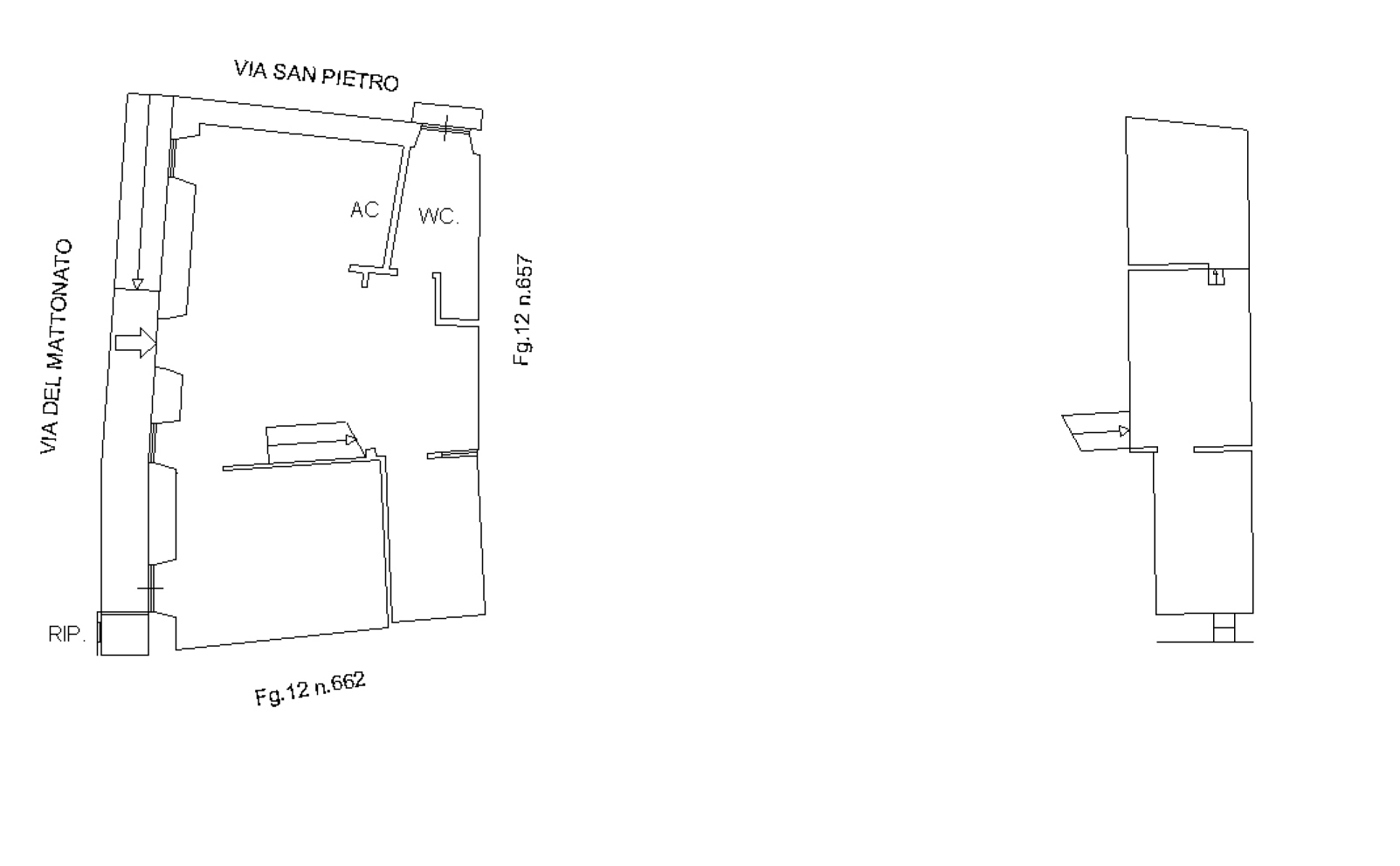
All'interno del centro storico del paese, vicino a tutti i servizi, proponiamo in vendita appartamento posto al piano secondo, disposto su due livelli.
Completamente ristrutturato, vanta ampio salone con angolo cottura, camera matrimoniale con balcone, due camerette e bagno con balcone.
Contattaci per saperne di pi o prenotare una visita! Contatta l'inserzionista

INFORMAZIONI SULL'IMMOBILE

  • Riferimento: Cod. rif 3262081VRG
  • Tipologia: Appartamento in Vendita
  • Locali: 4 Locali (3 camere, cucina abitabile e un bagno)
  • Piano: Secondo
  • Stato: Ristrutturato
  • Prezzo: 68.000 €
  • Prezzo al mq: 800 €
  • Balconi: 1
  • Spazio Auto: No
  • Modificato il: 07/01/2026
  • Scheda: SC9467529

Stabile

  • Piano: 2
I.P.E.
175Kwh/m2
G

Mappa e indirizzo

01036 Nepi (Viterbo)
mappa mostra l'annuncio su mappa

Galleria Fotografica

Contatta l'inserzionista

Immobiliare Lazzarini Srls

Immobiliare Lazzarini Srls di Nepi propone in vendita questo immobile, contattali subito!

Annunci immobiliari a Nepi (VT)

Copyright Š 2026 PCase.it. All rights reserved. Sede operativa MILANO. P.IVA 08508420968 - Condizioni d'uso e privacy