Preferiti

Sponsorizza

Stampa

Appartamento in vendita da ristrutturare a Serra Riccò in via campo poggio 2 - pedemonte

  • 59.102€
  • zona pedemonte
  • 4 locali
  • 79 mq
  • Vendesi

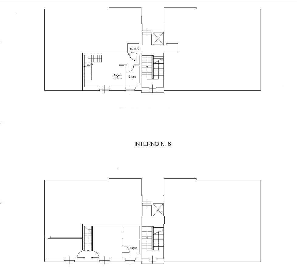
Appartamento in Serra Riccò (GE), Via Campo Poggio 2B/6, posto ai piani primo e secondo, collegati da una scala interna, composto da ingresso/soggiorno, e bagno al primo piano e due camere e bagno al secondo piano.
- Il Prezzo visualizzato è la Base d'Asta in quanto limmobile è oggetto di esecuzione immobiliare venduto tramite Asta Giudiziaria.
- L'immobile aggiudicato, viene venduto libero e sgombro da persone cose ed ipoteche nello stato di fatto e di diritto in cui si trova.
- Non rappresentiamo il Tribunale, ma lavoriamo nell'esclusivo interesse del potenziale acquirente per garantire un acquisto sicuro.
- I consulenti di ASTE ITALIA ti assisteranno in tutte le attività dell'iter giudiziario dalla visita dell'immobile fino alla consegna chiavi.
- Contatta il nostro Servizio Clienti , i nostri operatori sono a disposizione per chiarire i molteplici dubbi per partecipare alle ASTE. Contatta l'inserzionista

DOMY ONLINE S.R.L.DOMY ONLINE S.R.L.
Via San Lorenzo 5 Int. 41
16123, Genova (Genova)
Visualizza Telefono

INFORMAZIONI SULL'IMMOBILE

  • Riferimento: GE310/25LU-2005-26-1
  • Tipologia: Appartamento in Vendita
  • Locali: 4 Locali (3 camere, cucina angolo cottura con doppi servizi)
  • Piano: Primo
  • Stato: da Ristrutturare
  • Prezzo: 59.102 €
  • Prezzo al mq: 748 €
  • Modificato il: 13/03/2026
  • Scheda: SC9618574

Stabile

  • Piano: 1
G

Mappa e indirizzo

Appartamento sito in via campo poggio 2
16010 Serra Riccò (Genova), zona pedemonte
mappa mostra l'annuncio su mappa

Galleria Fotografica

Contatta l'inserzionista

DOMY ONLINE S.R.L.

DOMY ONLINE S.R.L. di Genova propone in vendita questo immobile, contattali subito!

Annunci immobiliari a Serra Riccò (GE)

Copyright © 2026 PCase.it. All rights reserved. Sede operativa MILANO. P.IVA 08508420968 - Condizioni d'uso e privacy