Preferiti

Sponsorizza

Stampa

Appartamento in vendita con terrazzo a Follonica in via lucania

  • 265.000€
  • 4 locali
  • 85 mq
  • Vendesi

Vendesi zona Cassarello, bellissimo appartamento vicinissimo al mare e a tutti i servizi.
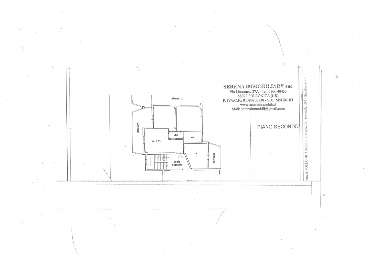
L'immobile sito al secondo piano di una piccola palazzina di circa 85 mq è composto da ampio soggiorno con accesso alla terrazza abitabile, perfetta per mangiare fuori, cucina abitabile con la seconda terrazza di servizio, reparto notte con due ampie camere matrimoniali e un bagno finestrato con la vasca.
L'immobile si presenta in ottime condizioni, ristrutturato recentemnte con rifiniture di qualità: parquet in legno vero, ambienti curati e un ottima esposizione.
Completa la proprietà un garage al piano sottostrada di circa 20 mq. Ideale per residenza sia per le vacanze.
Richiesta 265.000 trattabili Contatta l'inserzionista

SERENA IMMOBILIARESERENA IMMOBILIARE
VIA LITORANEA 27a
58022, Follonica (Grosseto)
Visualizza Telefono

INFORMAZIONI SULL'IMMOBILE

  • Riferimento: CS26502
  • Tipologia: Appartamento in Vendita
  • Locali: 4 Locali (3 camere, cucina abitabile e un bagno)
  • Piano: Secondo
  • Stato: Ottimo
  • Prezzo: 265.000 €
  • Prezzo al mq: 3.118 €
  • Balconi: 1
  • Terrazzi: 1
  • Riscaldamento: Autonomo
  • Spazio Auto: Box singolo
  • Modificato il: 20/04/2026
  • Scheda: SC9640904

Stabile

  • Piano: 2 su 3 totali
F

Galleria Fotografica

Contatta l'inserzionista

SERENA IMMOBILIARE

SERENA IMMOBILIARE di Follonica propone in vendita questo immobile, contattali subito!

Annunci simili

Annunci immobiliari a Follonica (GR)

Copyright Š 2026 PCase.it. All rights reserved. Sede operativa MILANO. P.IVA 08508420968 - Condizioni d'uso e privacy