Preferiti

Sponsorizza

Stampa

Appartamento in vendita con terrazzo a Rapallo in via tre scalini 5

  • 66.375€
  • 4 locali
  • 66 mq
  • Vendesi

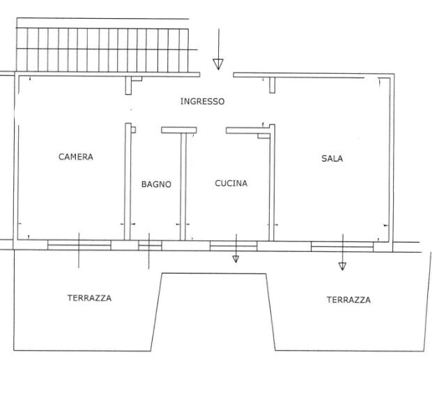
Appartamento residenziale composto da ingresso, cucina, bagno, sala e camera da letto, oltre a due terrazze di pertinenza.
- Il Prezzo visualizzato è la Base d'Asta in quanto limmobile è oggetto di esecuzione immobiliare venduto tramite Asta Giudiziaria.
- L'immobile aggiudicato, viene venduto libero e sgombro da persone cose ed ipoteche nello stato di fatto e di diritto in cui si trova.
- Non rappresentiamo il Tribunale, ma lavoriamo nell'esclusivo interesse del potenziale acquirente per garantire un acquisto sicuro.
- I consulenti di ASTE ITALIA ti assisteranno in tutte le attività dell'iter giudiziario dalla visita dell'immobile fino alla consegna chiavi.
- Contatta il nostro Servizio Clienti , i nostri operatori sono a disposizione per chiarire i molteplici dubbi per partecipare alle ASTE. Contatta l'inserzionista

DOMY ONLINE S.R.L.DOMY ONLINE S.R.L.
Via San Lorenzo 5 Int. 41
16123, Genova (Genova)
Visualizza Telefono

INFORMAZIONI SULL'IMMOBILE

  • Riferimento: GE327/22LU-1404-26-1
  • Tipologia: Appartamento in Vendita
  • Locali: 4 Locali (3 camere, cucina abitabile e un bagno)
  • Piano: Primo
  • Stato: da Ristrutturare
  • Prezzo: 66.375 €
  • Prezzo al mq: 1.006 €
  • Terrazzi: 2 - 24 Mq
  • Modificato il: 23/01/2026
  • Scheda: SC9587656

Stabile

  • Piano: 1
G

Mappa e indirizzo

Appartamento sito in via tre scalini 5
16035 Rapallo (Genova)
mappa mostra l'annuncio su mappa

Galleria Fotografica

Contatta l'inserzionista

DOMY ONLINE S.R.L.

DOMY ONLINE S.R.L. di Genova propone in vendita questo immobile, contattali subito!

Annunci immobiliari a Rapallo (GE)

Copyright Š 2026 PCase.it. All rights reserved. Sede operativa MILANO. P.IVA 08508420968 - Condizioni d'uso e privacy