Preferiti

Sponsorizza

Stampa

Appartamento in vendita con giardino a Pisa

  • 300.000€
  • 4 locali
  • 130 mq
  • Vendesi

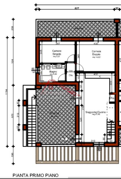
***.*******.** M1948 - PISA - IN ESCLUSIVA - splendido appartamento di nuova costruzione, situato al piano primo con ingresso INDIPENDENTE tramite un BEL GIARDINO DI CIRCA 200 MQ. L'immobile, con una superficie di 80 mq oltre 50 mq di MANSARDA si compone di ingresso tramite scala esterna e ripostiglio nel sottoscala, accesso diretto ad una bella TERRAZZA ABITABILE DI 25 MQ con pergolato, soggiorno con angolo cottura, nel disimpegno notte troviamo due camere da letto con accesso al terrazzo di 15 mq e un bagno finestrato; dal soggiorno tramite comoda scala si accede alla mansarda nella quale è possibile ricavare un'altra camera da letto e uno studio dotato di una piccola loggia.
L'immobile è esposto su tre lati garantendo luminosità in ogni angolo.
DI PERTINENZA DUE POSTI AUTO. PROPOSTO IN CLASSE "A4" Questo appartamento a lavori ultimati sarà dotato di sistema di riscaldamento a pavimento radiante, predisposizione allarme, videocitofono, ottimo isolamento acustico, pannelli fotovoltaici, tutto per un risparmio energetico e rappresenta un'opportunità unica per chi cerca un'abitazione all'avanguardia e sostenibile.
Non sono previste spese condominiali, offrendo così un ulteriore vantaggio economico.
Posizionato in zona strategica questa proprietà è ideale per chi desidera vivere comodamente in una zona centrale e ben servita, senza rinunciare agli spazi esterni.
Consegna prevista autunno 2026 Capitolato e progetti visionabili presso l'agenzia.
Possibilità di scegliere le rifiniture! Prezzo di vendita: 300.000 Euro. Facciamo presente alla gentile clientela che gli indirizzi riportati sugli annunci sono puramente indicativi e le immagini dei rendering sono a scopo illustrativo.
Per maggiori informazioni ci trovate a Cascina loc. Navacchio, in via Tosco Romagnola, 2011 oppure potete contattarci ai seguenti recapiti telefonici: 0508665524 3939336199 *******@******* Contatta l'inserzionista

11 Marzo Immobiliare11 Marzo Immobiliare
Piazza della Fornace, 16
, Pisa (Pisa)
Visualizza Telefono

INFORMAZIONI SULL'IMMOBILE

  • Riferimento: 1337319/1733/M1948
  • Tipologia: Appartamento in Vendita
  • Locali: 4 Locali (3 camere, cucina angolo cottura e un bagno)
  • Piano: Primo
  • Stato: Nuovo
  • Prezzo: 300.000 €
  • Prezzo al mq: 2.308 €
  • Balconi: 2
  • Terrazzi: 1 - 1 Mq
  • Riscaldamento: Autonomo
  • Giardino: Privato - 200 Mq
  • Cantina: Si
  • Soffitta: Si
  • Mansarda: Si
  • Modificato il: 09/01/2026
  • Scheda: SC9490062

Stabile

  • Piano: 1 su 2 totali
I.P.E.
20Kwh/m2
A+

Mappa e indirizzo

56128 Pisa (Pisa)
Sant'Ermete-Putignano, Riglione-Oratorio
mappa mostra l'annuncio su mappa

Galleria Fotografica

Contatta l'inserzionista

11 Marzo Immobiliare

11 Marzo Immobiliare di Pisa propone in vendita questo immobile, contattali subito!

Annunci simili

Annunci immobiliari a Pisa (PI)

Copyright Š 2026 PCase.it. All rights reserved. Sede operativa MILANO. P.IVA 08508420968 - Condizioni d'uso e privacy