Preferiti

Sponsorizza

Stampa

Appartamento in vendita con giardino a Montevarchi

  • 199.000€
  • 4 locali
  • 100 mq
  • Vendesi

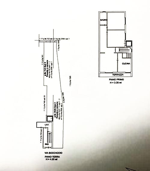
Montevarchi- Zona semicentrale, ampio appartamento al primo piano, di circa 100mq, composto da cucina abitabile, soggiorno, 2 camere matrimoniali, bagno, terrazza, giardino al piano terra, cantina e garage.
Cl. En. G. L'immobile è internamente da rimodernare, gli esterni sono in buone condizioni.
Rif. M809 Richiesta 199.000 euro. Contatta l'inserzionista

ROSSI PROJECT DI ROSSI RAFFAELLAROSSI PROJECT DI ROSSI RAFFAELLA
VIA PASTEUR 17
52025, Montevarchi (Arezzo)
Visualizza Telefono

INFORMAZIONI SULL'IMMOBILE

  • Riferimento: M809
  • Tipologia: Appartamento in Vendita
  • Locali: 4 Locali (3 camere, cucina abitabile e un bagno)
  • Piano: Primo con ascensore
  • Stato: da Ristrutturare
  • Prezzo: 199.000 €
  • Prezzo al mq: 1.990 €
  • Terrazzi: 1
  • Riscaldamento: Autonomo
  • Giardino: Privato
  • Spazio Auto: Box singolo
  • Cantina: Si
  • Modificato il: 20/03/2026
  • Scheda: SC9142855

Stabile

  • Piano: 1
  • Ascensore: Si
G

Mappa e indirizzo

52025 Montevarchi (Arezzo)
mappa mostra l'annuncio su mappa

Galleria Fotografica

Contatta l'inserzionista

ROSSI PROJECT DI ROSSI RAFFAELLA

ROSSI PROJECT DI ROSSI RAFFAELLA di Montevarchi propone in vendita questo immobile, contattali subito!

Annunci simili

Annunci immobiliari a Montevarchi (AR)

Copyright Š 2026 PCase.it. All rights reserved. Sede operativa MILANO. P.IVA 08508420968 - Condizioni d'uso e privacy