Preferiti

Sponsorizza

Stampa

Appartamento in vendita con box a Ruvo di Puglia - sacra famiglia

  • 185.000€
  • zona sacra famiglia
  • 4 locali
  • 95 mq
  • Vendesi

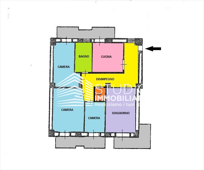
SI VENDE luminoso quadrilocale di 95 mq circa.
Situato al secondo piano, questo appartamento offre spazi ampi e ben distribuiti: quattro vani con servizi ideali per famiglie o chi desidera comfort e funzionalità. A completare la proprietà un comodo box auto che garantisce praticità e sicurezza.
Nella richiesta sono compresi i lavori di manutenzione della facciata condominiale, già deliberati, che saranno a carico del venditore. Contatta l'inserzionista

Si Studio ImmobiliareSi Studio Immobiliare
Larghetto Tedone, 8
70037, Ruvo di Puglia (Bari)
Visualizza Telefono

INFORMAZIONI SULL'IMMOBILE

  • Riferimento: 1079
  • Tipologia: Appartamento in Vendita
  • Locali: 4 Locali (3 camere)
  • Piano: Secondo
  • Stato: da Ristrutturare
  • Prezzo: 185.000 €
  • Prezzo al mq: 1.947 €
  • Spazio Auto: Box singolo
  • Modificato il: 22/04/2026
  • Scheda: SC9461687

Stabile

  • Piano: 2
  • Giardino: Condominiale
  • Classe Energetica: n.d.

Mappa e indirizzo

70037 Ruvo di Puglia (Bari), zona sacra famiglia
mappa mostra l'annuncio su mappa

Galleria Fotografica

Contatta l'inserzionista

Si Studio Immobiliare

Si Studio Immobiliare di Ruvo di Puglia propone in vendita questo immobile, contattali subito!

Annunci simili

Annunci immobiliari a Ruvo di Puglia (BA)

Copyright Š 2026 PCase.it. All rights reserved. Sede operativa MILANO. P.IVA 08508420968 - Condizioni d'uso e privacy