Preferiti

Sponsorizza

Stampa

Negozio in vendita a Siracusa

  • 110.000€
  • 1 locale
  • 55 mq
  • Vendesi

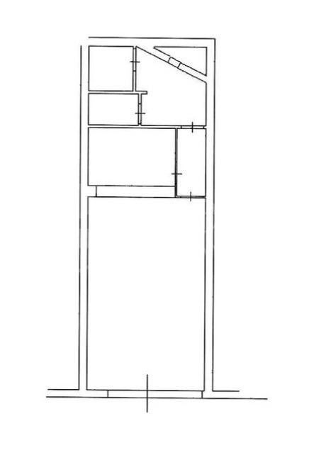
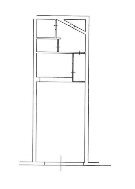
Il basso posto al piano terra, di un edificio di tre piani, mentre il garage posto al piano seminterrato.
Entrambi gli immobili sono collegati da una botola interna.
Il basso ha una grande vetrina su strada (per tutta la facciata dellimmobile), un grande vano commerciale, piccolo corridoio, locale cucina, vano interno (che pu fungere da magazzino o ufficio), due bagni. Contatta l'inserzionista

INFORMAZIONI SULL'IMMOBILE

  • Riferimento: V5158VCG
  • Tipologia: Negozio in Vendita
  • Locali: 1 Locali ( 1 camera con doppi servizi)
  • Piano: Terra
  • Prezzo: 110.000 €
  • Prezzo al mq: 2.000 €
  • Spese: 360,00 € (annuali)
  • Spazio Auto: No
  • Modificato il: 17/12/2025
  • Scheda: SC9545550

Stabile

  • Piano: Terra su 3 totali
I.P.E.
160Kwh/m2
G

Mappa e indirizzo

96100 Siracusa (Siracusa)
mappa mostra l'annuncio su mappa

Galleria Fotografica

Contatta l'inserzionista

Sesto Global Services s.a.s. di Giuseppe Sesto & C.

Sesto Global Services s.a.s. di Giuseppe Sesto & C. di Siracusa propone in vendita questo immobile, contattali subito!

Annunci simili

Annunci immobiliari a Siracusa (SR)

Copyright Š 2026 PCase.it. All rights reserved. Sede operativa MILANO. P.IVA 08508420968 - Condizioni d'uso e privacy