Preferiti

Sponsorizza

Stampa

Negozio in vendita a Palermo

  • 465.000€
  • 3 locali
  • 246 mq
  • Vendesi

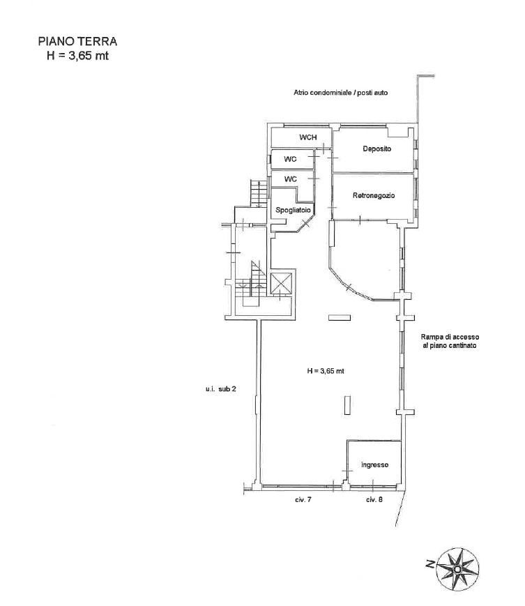
Via Danimarca (zona Strasburgo) proponiamo in vendita un luminoso negozio ad uso commerciale con 3 locali e 3 bagni, per un totale di 246 mq. L'immobile posto al piano terra, con due vetrine su strada, risulta cos composto: ingresso, un grande ambiente per esposizione, un vano uso ufficio, retronegozio, deposito, spogliatoio e 3 servizi.
Questa propriet offre un'ampia variet di possibilit d'uso grazie alla sua posizione strategica e alla presenza di numerosi servizi nelle vicinanze, tra cui bar, fast food, pub, ristoranti, asili, scuole, stazioni di servizio, parcheggi, farmacie, cinema e uffici postali.
Con una metratura generosa e una distribuzione interna ottimale, questo locale si presta perfettamente per ospitare attivit commerciali di vario genere, garantendo visibilit e accessibilit ai potenziali clienti.
La zona ben servita dai mezzi pubblici e gode di un'ottima visibilit grazie all'alto flusso di persone che frequentano la zona. Non lasciarti sfuggire questa opportunit unica di investimento in un'area in continua crescita e contattaci per organizzare una visita e scoprire tutte le potenzialit di questo immobile.
Per info: Agenzia Gabetti Palermo Libert, Via Camillo Cavour N°53/D, Tel. 0919294008 - mail: *******@******* Contatta l'inserzionista

Lion SrlLion Srl
Via Camillo Cavour 53/D
, Palermo (Palermo)
Visualizza Telefono

INFORMAZIONI SULL'IMMOBILE

  • Riferimento: CNT211 - 17/2026VCG
  • Tipologia: Negozio in Vendita
  • Locali: 3 Locali (2 camere e 3 bagni)
  • Piano: Terra
  • Prezzo: 465.000 €
  • Prezzo al mq: 1.890 €
  • Spazio Auto: No
  • Modificato il: 05/05/2026
  • Scheda: SC9623176

Stabile

  • Piano: Terra
  • Classe Energetica: n.d.

Mappa e indirizzo

90131 Palermo (Palermo)
San Lorenzo, Villa Sofia
mappa mostra l'annuncio su mappa

Galleria Fotografica

Contatta l'inserzionista

Lion Srl

Lion Srl di Palermo propone in vendita questo immobile, contattali subito!

Annunci simili

Annunci immobiliari a Palermo (PA)

Copyright Š 2026 PCase.it. All rights reserved. Sede operativa MILANO. P.IVA 08508420968 - Condizioni d'uso e privacy