Preferiti

Sponsorizza

Stampa

Negozio in vendita a Milano

  • 600.000€
  • 2 locali
  • 156 mq
  • Vendesi

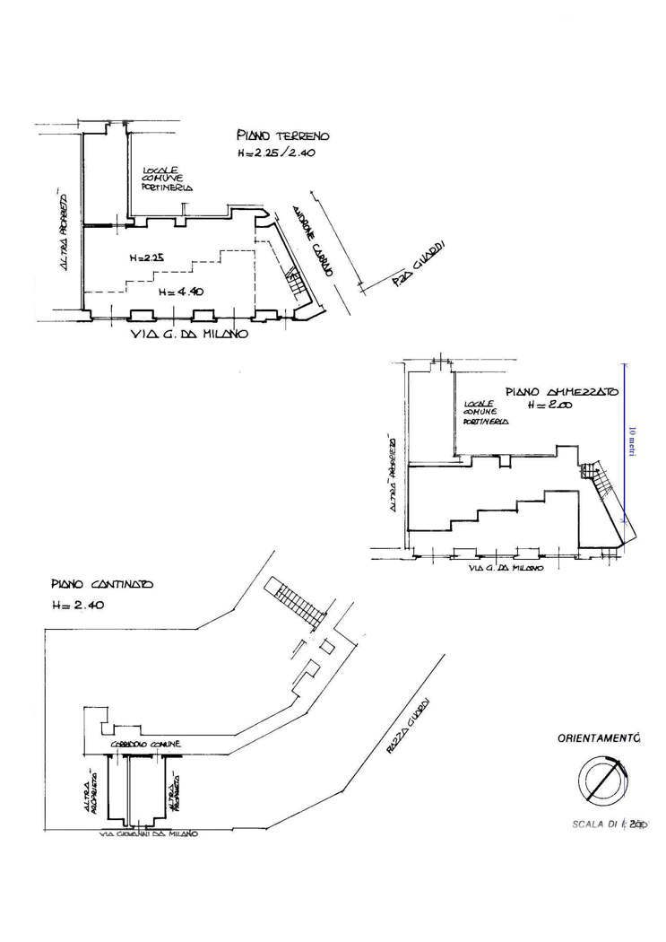
Milano zona Acquabella/Citt Studi : Prospiciente alla piazza Guardi ad angolo con via Giovanni da Milano sorge un palazzo residenziale con lessico tardo-eclettico/razionalista tipico del primo 30 caratterizzato da paramenti in laterizio e cornici/basamento in pietra, forte trattamento del cantonale con bovindi e balconi sovrapposti che disegnano un motivo geometrico continuo; piano terreno a grandi bucature per negozi/ingresso monumentale.
Il negozio consta di 5 vetrine totali , due ingressi , ampio soppalco e cantina.
Condotto in locazione ,da diversi anni, da primaria azienda di telecomunicazioni nazionale che ne ha fatto un NOC ( Network Operations Center ) ovvero il centro operativo che controlla e gestisce una rete informatica o di telecomunicazioni, L'elevato investimento fatto dal conduttore garantisce la qualit del vostro investimento, con redditivit del 5% ***.*******.** sede di trattativa possibile raggiungere una redditivit del 6% . Grimaldi si trova a Cinisello Balsamo in via SantAntonio, 13 - ***.*******.** - YouTube "GrimaldiCinisello"- whatsapp 324 5635942 02 87261587 - *******@******* Contatta l'inserzionista

Livingstone sas di Alberto La Greca & C.Livingstone sas di Alberto La Greca & C.
Via Sant' Antonio 13
, Cinisello Balsamo (Milano)
Visualizza Telefono

INFORMAZIONI SULL'IMMOBILE

  • Riferimento: Cod. rif 3274274VCG
  • Tipologia: Negozio in Vendita
  • Locali: 2 Locali ( 1 camera con doppi servizi)
  • Piano: Terra
  • Prezzo: 600.000 €
  • Prezzo al mq: 3.846 €
  • Spazio Auto: No
  • Modificato il: 16/03/2026
  • Scheda: SC9581863

Stabile

  • Piano: Terra
I.P.E.
257,83Kwh/m2
G

Mappa e indirizzo

20131 Milano (Milano)
Città Studi, Susa
mappa mostra l'annuncio su mappa

Galleria Fotografica

Contatta l'inserzionista

Livingstone sas di Alberto La Greca & C.

Livingstone sas di Alberto La Greca & C. di Cinisello Balsamo propone in vendita questo immobile, contattali subito!

Annunci immobiliari a Milano (MI)

Copyright © 2026 PCase.it. All rights reserved. Sede operativa MILANO. P.IVA 08508420968 - Condizioni d'uso e privacy