Preferiti

Sponsorizza

Stampa

Negozio in vendita a Messina

  • Prezzo ribassato -23%
  • € 65.000 50.000€
  • 67 mq
  • Vendesi

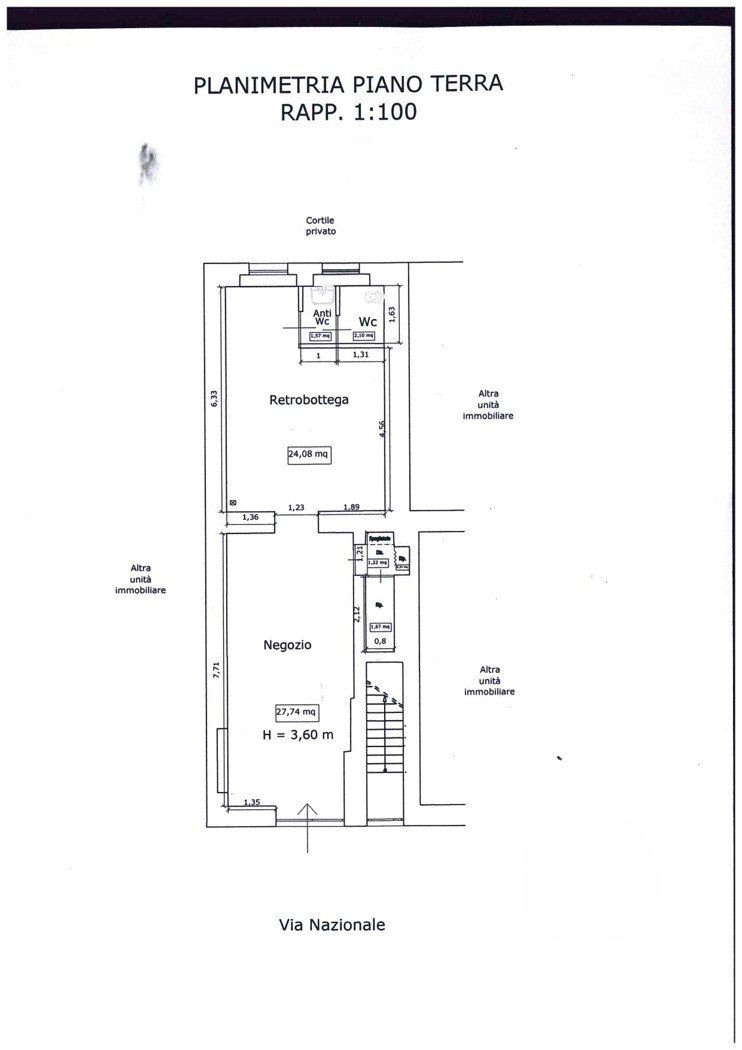
Nella zona di Mili Marina sulla via Nazionale, Gabetti propone in vendita un locale commerciale con una vetrina su strada che si presta alla realizzazione di svariate attivit di vendita.
La superficie composta da un ampio ambiente principale antistante con ripostiglio e un retrobottega finestrato dalle generose dimensioni attraverso il quale si accede al bagno con antibagno anchessi arieggiati.
La struttura, necessita di qualche opera di adattamento ma dispone di tutte le certificazioni degli impianti idrici e fognari.
Cambiando la destinazione duso, gli spazi possono essere adibiti ad altre finalit. Contatta l'inserzionista

Immobilogistics SrlsImmobilogistics Srls
Via San Martino 361
, Messina (Messina)
Visualizza Telefono

INFORMAZIONI SULL'IMMOBILE

  • Riferimento: Cod. rif 3288888VCG
  • Tipologia: Negozio in Vendita
  • Piano: Terra
  • Bagni: 1
  • Prezzo: 50.000 €
  • Prezzo al mq: 746 €
  • Spazio Auto: No
  • Modificato il: 04/03/2026
  • Scheda: SC9592452

Stabile

  • Piano: Terra su 2 totali
  • Classe Energetica: n.d.

Mappa e indirizzo

98168 Messina (Messina)
Giampilieri, Santa Margherita, Mili
mappa mostra l'annuncio su mappa

Galleria Fotografica

Contatta l'inserzionista

Immobilogistics Srls

Immobilogistics Srls di Messina propone in vendita questo immobile, contattali subito!

Annunci simili

Annunci immobiliari a Messina (ME)

Copyright Š 2026 PCase.it. All rights reserved. Sede operativa MILANO. P.IVA 08508420968 - Condizioni d'uso e privacy