Preferiti

Sponsorizza

Stampa

Negozio in vendita a Carrara - marina di

  • 220.000€
  • zona marina di
  • 93 mq
  • Vendesi

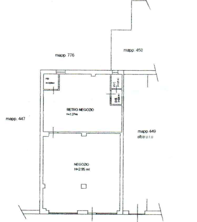
***.*******.** 134V - ?Marina di Carrara In prossimità della piazza principale, proponiamo in vendita fondo commerciale di 96 mq attualmente adibito a negozio di alimentari.
Limmobile è suddiviso in due vani: - un locale anteriore destinato allesposizione dei prodotti e al servizio al bancone; - un locale posteriore adibito a deposito merci, completo di cucina, due celle frigorifere, angolo ufficio e bagno con antibagno.
Gli impianti sono funzionanti e attualmente in uso. ? Classe energetica: F - kWh/m2anno 125,73 ? Prezzo di vendita del fondo: ?220.000 ? Possibilità di acquisto con l'attività commerciale compresa: ?290.000 complessivi Contatta l'inserzionista

CASA OK Agenzia ImmobiliareCASA OK Agenzia Immobiliare
Viale Zaccagna, 13
, Carrara (Massa-Carrara)
Visualizza Telefono

INFORMAZIONI SULL'IMMOBILE

  • Riferimento: 1347265/1538/134V
  • Tipologia: Negozio in Vendita
  • Piano: Terra
  • Stato: Buono
  • Bagni: 1
  • Prezzo: 220.000 €
  • Prezzo al mq: 2.366 €
  • Modificato il: 03/12/2025
  • Scheda: SC9464891

Stabile

  • Piano: Terra
  • Classe Energetica: n.d.

Mappa e indirizzo

54033 Carrara (Massa-Carrara), zona marina di
mappa mostra l'annuncio su mappa

Contatta l'inserzionista

CASA OK Agenzia Immobiliare

CASA OK Agenzia Immobiliare di Carrara propone in vendita questo immobile, contattali subito!

Annunci simili

Annunci immobiliari a Carrara (MS)

Copyright Š 2026 PCase.it. All rights reserved. Sede operativa MILANO. P.IVA 08508420968 - Condizioni d'uso e privacy