Preferiti

Sponsorizza

Stampa

Negozio in vendita da ristrutturare a Napoli in centro direzionale isola f11 - centro direzionale

  • 580.000€
  • zona centro direzionale
  • 2 locali
  • 450 mq
  • Vendesi

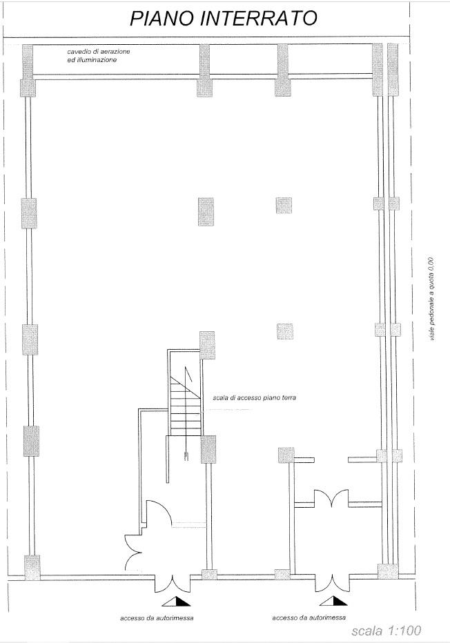
L’ immobile si sviluppa su tre livelli distinti e comunicanti tra di loro per mezzo di una scala interna: il piano terra presenta un doppio accesso sia dal porticato che dalla retrostante piazzetta interna (piazza Esedra); al piano interrato l’ accesso avviene anche direttamente dal piano garage condominiale; nel suddetto garage è disponibile un posto auto. Il piano terra si sviluppa su una superficie coperta di circa 100 mq ed affaccia su piazza Esedra con una parete completamente vetrinata e pertanto particolarmente luminoso.
Il piano soppalcato misura in pianta circa 60 mq ed anch’esso affaccia su piazza Esedra con una ampia finestratura.
Il piano cantinato prende luce ed aria da bocche di lupo disposte sul perimetro e misura in pianta 290 mq. L’immobile occupa una posizione centrale nell’ambito del Centro Direzionale di Napoli, usufruendo di tutti i vantaggi legati alla presenza di una capillare e diversificata rete di trasporti pubblici (stazione ferroviaria, linea metropolitana, linea circumvesuviana, stazioni di fermata di linee di autobus cittadini e provinciali). In particolare, l’accesso principale dal porticato è situato a pochi metri dall’uscita della stazione della Circumvesuviana.
Nelle vicinanze dell’ immobile sono collocati svariati uffici pubblici tra cui si segnalano gli uffici della Regione Campania e del nuovo Tribunale di Napoli, ed una serie banche; tale situazione logistica porta al passaggio giornaliero di centinaia di migliaia di utenti nella zona. I locali sono idonei ad ospitare attività bancarie, negozi, uffici pubblici e ristorazione.
Locale Commerciale: – superficie negozio PT mq. 100,00 – superficie soppalco mq. 60,00 – superficie uso deposito mq. 290,00 – posti auto n° 1 mq. 8 Contatta l'inserzionista

Realty servizi immobiliariRealty servizi immobiliari
via Michelangelo Schipa 83/85
80121, Napoli (Napoli)
Visualizza Telefono

INFORMAZIONI SULL'IMMOBILE

  • Tipologia: Negozio in Vendita
  • Locali: 2 Locali ( 1 camera)
  • Stato: da Ristrutturare
  • Prezzo: 580.000 €
  • Prezzo al mq: 1.289 €
  • Modificato il: 28/01/2026
  • Scheda: SC9590486

Stabile

  • Classe Energetica: n.d.

Video

Galleria Fotografica

Contatta l'inserzionista

Realty servizi immobiliari

Realty servizi immobiliari di Napoli propone in vendita questo immobile, contattali subito!

Annunci immobiliari a Napoli (NA)

Copyright Š 2026 PCase.it. All rights reserved. Sede operativa MILANO. P.IVA 08508420968 - Condizioni d'uso e privacy