Preferiti

Sponsorizza

Stampa

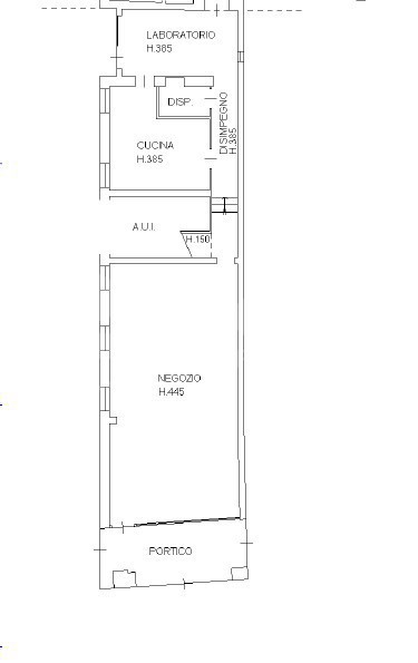
Negozio in affitto arredato a Treviso

  • 2.500€
  • 3 locali
  • 116 mq
  • Affittasi

Affascinante negozio commerciale in affitto nel cuore di Treviso.
Con una superficie di 116 mq dei quali 80 di vendita e 36 tra cucina, laboratorio e servizio igenico, questo spazio dotato di canna fumaria ideale per attivit come panificio, gastronomia, pasta fresca produzione e vendita, slow food. Costruito nel 1300 e ristrutturato nel 2000, offre un ambiente signorile con impianto di riscaldamento e climatizzazione autonomi.
Dotato di ripostiglio e parcheggio nelle vicinanze, perfetto per attivit commerciali che richiedono spazio e visibilit.
Situato in una zona ricca di servizi come farmacie, ufficio postale e luoghi di culto, questo locale un'opportunit unica per chi cerca un punto vendita di prestigio nel vivace contesto trevigiano. Contatta l'inserzionista

Guerra Carlo D.I.Guerra Carlo D.I.
Via San Nicolò 12
, Treviso (Treviso)
Visualizza Telefono

INFORMAZIONI SULL'IMMOBILE

  • Riferimento: Cod. rif 3209655ACG
  • Tipologia: Negozio in Affitto
  • Locali: 3 Locali (2 camere con doppi servizi)
  • Piano: Terra
  • Prezzo: 2.500 €
  • Prezzo al mq: 22 €
  • Riscaldamento: Autonomo
  • Spazio Auto: No
  • Arredato: Si
  • Modificato il: 14/01/2026
  • Scheda: SC9294557

Stabile

  • Piano: Terra su 1 totali
I.P.E.
89Kwh/m2
D

Mappa e indirizzo

31100 Treviso (Treviso)
Intorno Mura
mappa mostra l'annuncio su mappa

Galleria Fotografica

Contatta l'inserzionista

Guerra Carlo D.I.

Guerra Carlo D.I. di Treviso propone in affitto questo immobile, contattali subito!

Annunci simili

Annunci immobiliari a Treviso (TV)

Copyright © 2026 PCase.it. All rights reserved. Sede operativa MILANO. P.IVA 08508420968 - Condizioni d'uso e privacy